Top.Mail.Ru

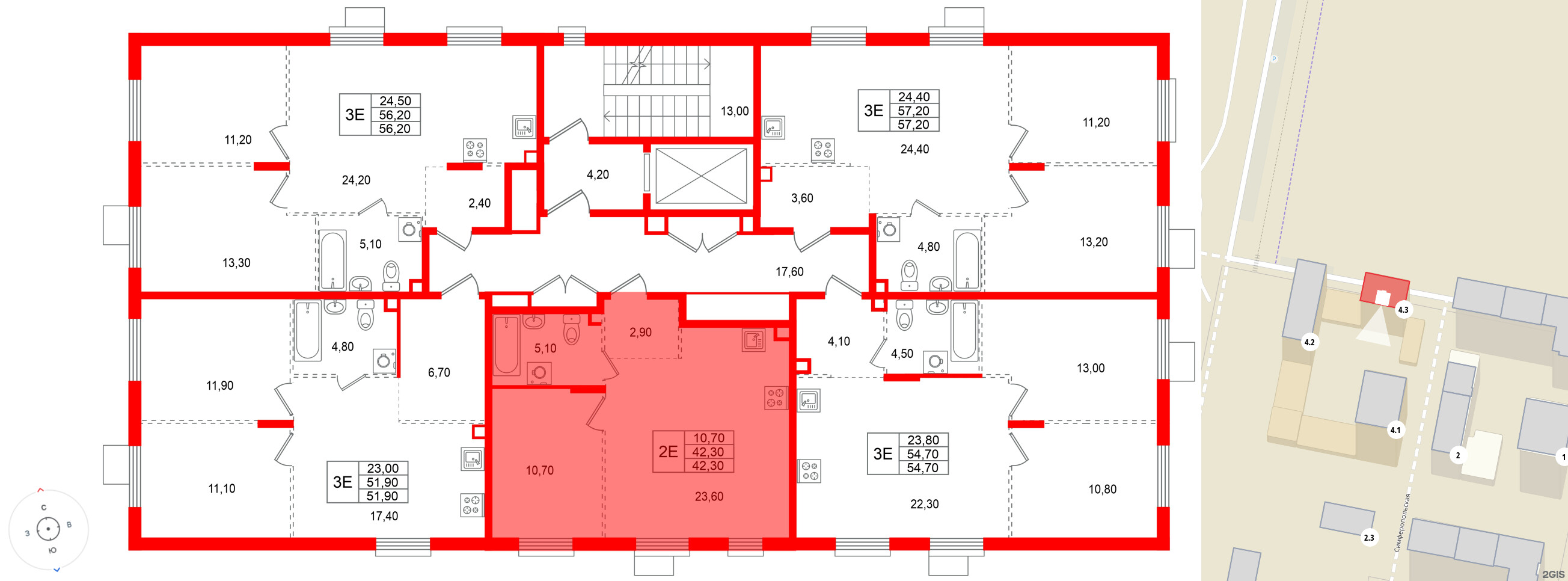
2е комнатная квартира 42.3 м², № 209

Квартира в ЖК «А101 Всеволожск», 1 комнатная, 42.3 м², 2 этаж
Квартира в ЖК «А101 Всеволожск», 1 комнатная, 42.3 м², 2 этаж
42,30 м² 10,70 м² 23,60 м² 2.84 м 2 из 8
Общая площадь Площадь комнат Площадь кухни Высота потолка Этаж
Тип санузла:  Совмещенный Балкон - нет Отделка — 
Нет

Уникальные квартиры

Свободная планировка
Подробнее о преимуществе

Выберите условия покупки
Перейти к сравнению