Top.Mail.Ru

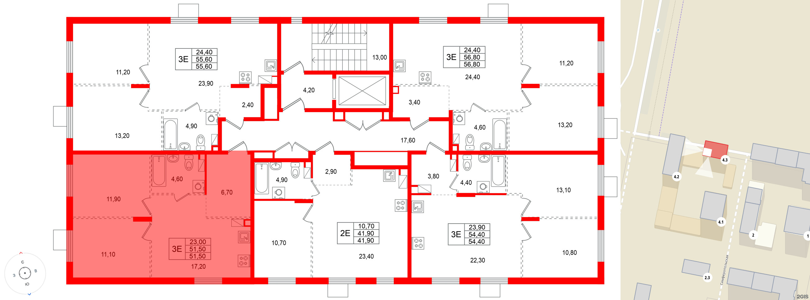
3е комнатная квартира 51.5 м², № 215

Квартира в ЖК «А101 Всеволожск», 2 комнатная, 51.5 м², 3 этаж
Квартира в ЖК «А101 Всеволожск», 2 комнатная, 51.5 м², 3 этаж
51,50 м² 23,00 м² 17,20 м² 2.84 м 3 из 8
Общая площадь Площадь комнат Площадь кухни Высота потолка Этаж
Тип санузла:  Совмещенный Отделка — 
Нет

Уникальные квартиры

Свободная планировка
Подробнее о преимуществе

Выберите условия покупки
Перейти к сравнению