Top.Mail.Ru

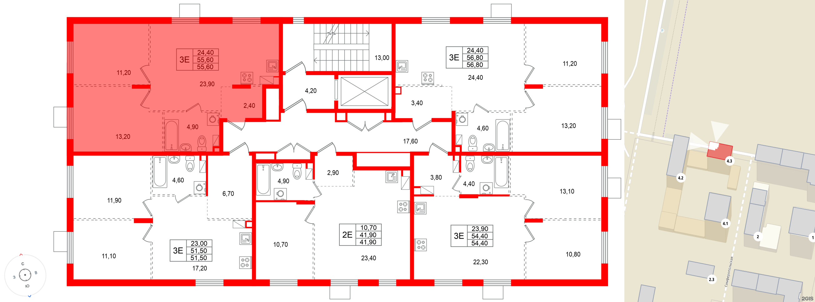
3е комнатная квартира 55.6 м², № 236

Квартира в ЖК «А101 Всеволожск», 2 комнатная, 55.6 м², 7 этаж
Квартира в ЖК «А101 Всеволожск», 2 комнатная, 55.6 м², 7 этаж
55,60 м² 24,40 м² 23,90 м² 2.84 м 7 из 8
Общая площадь Площадь комнат Площадь кухни Высота потолка Этаж
Тип санузла:  Совмещенный Отделка — 
Нет

Уникальные квартиры

Свободная планировка
Подробнее о преимуществе

Выберите условия покупки
Перейти к сравнению