Top.Mail.Ru

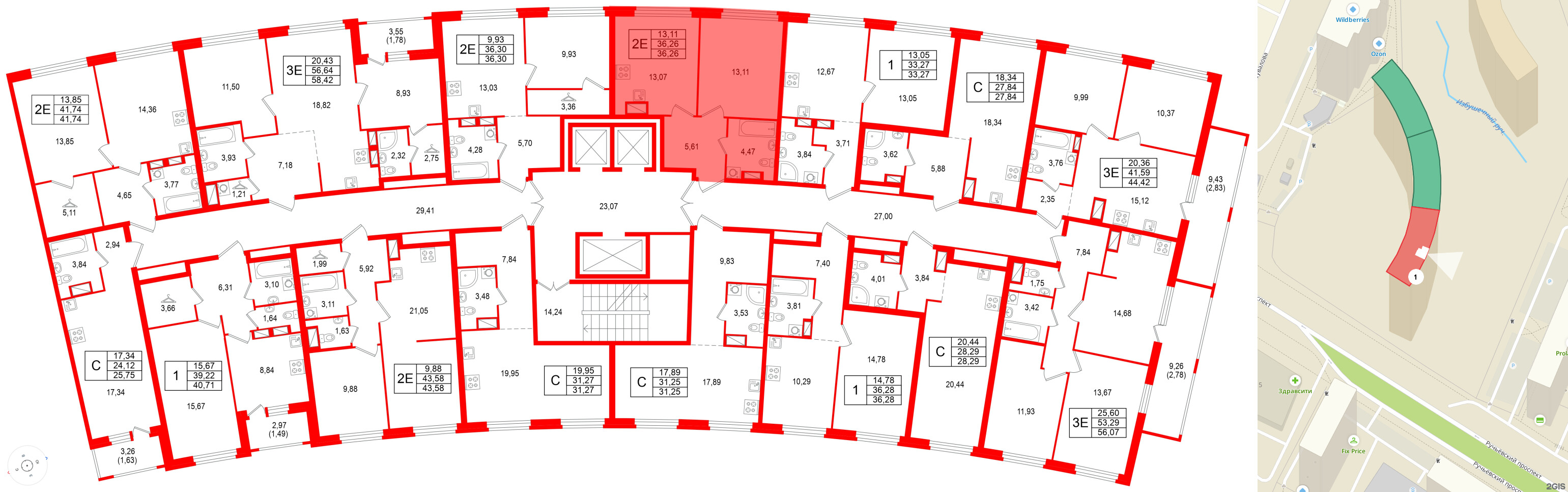
2е комнатная квартира 36.26 м², № 173

Квартира в ЖК «Аквилон Рива», 1 комнатная, 36.26 м², 13 этаж
Квартира в ЖК «Аквилон Рива», 1 комнатная, 36.26 м², 13 этаж
36,26 м² 13,11 м² 13,07 м² 2.73 м 13 из 20
Общая площадь Площадь комнат Площадь кухни Высота потолка Этаж
Тип санузла:  Совмещенный Балкон - нет Отделка — 
Предчистовая
Выберите условия покупки
Перейти к сравнению