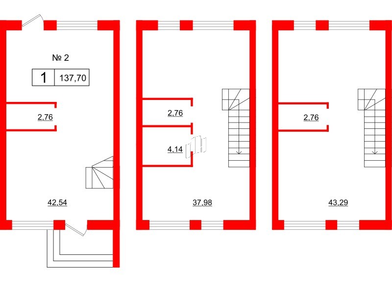
1 комнатная квартира 137.7 м², № 27.2
ЖК Алгоритм.Стрельна , Корпус 27
Срок сдачи — Сдан
| 137,70 м² | 75,56 м² | 28,41 м² | 1 из 3 |
| Общая площадь | Площадь комнат | Площадь кухни | Этаж |
|---|
| Три санузла | Балкон - нет | Отделка — |
Нет
|
|---|
Выберите условия покупки
Забронируйте объект по телефону
Онлайн-бронирование временно недоступно