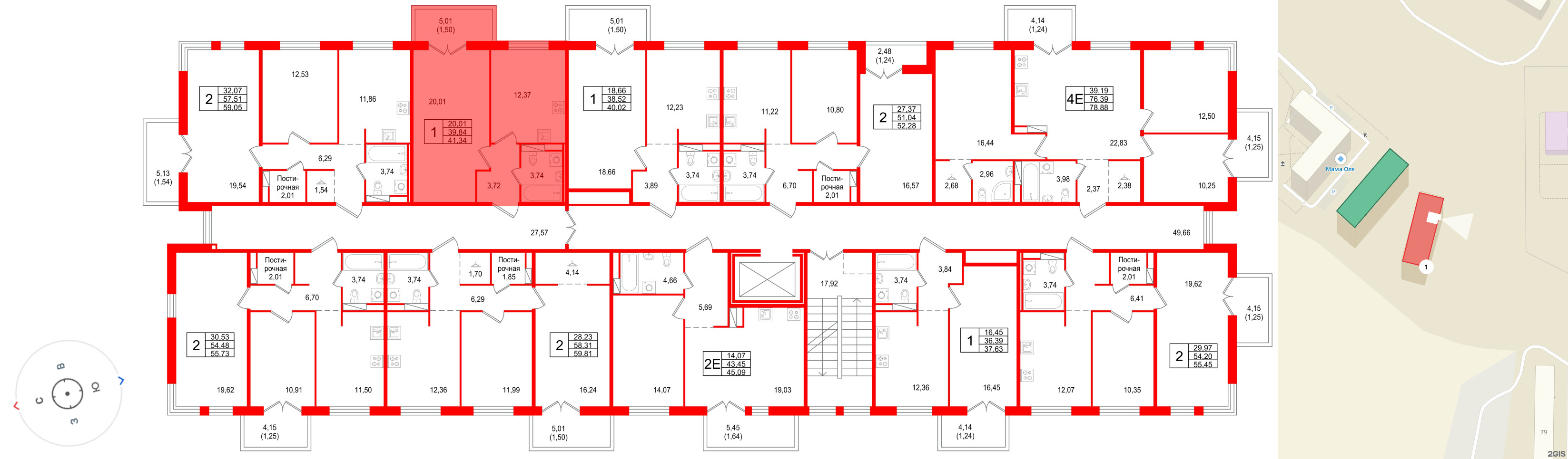
1 комнатная квартира 41.34 м², № 44
ЖК Арт Парк , Корпус 1
Срок сдачи — II кв. 2026 г.
| 41,34 м² | 20,01 м² | 12,37 м² | 2.7 м | 5 из 8 |
| Общая площадь | Площадь комнат | Площадь кухни | Высота потолка | Этаж |
|---|
| Тип санузла:  | Совмещенный | Есть балкон | Отделка — |
|---|
Выберите условия покупки
Забронируйте объект по телефону
Онлайн-бронирование временно недоступно