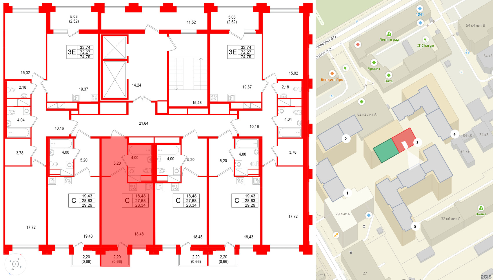
Студия 28.34 м², № 260
ЖК Ассамблея , Корпус 3
Срок сдачи — III кв. 2028 г.
| 28,34 м² | 18,48 м² | 7 из 12 |
| Общая площадь | Площадь комнат | Этаж |
|---|
| Тип санузла:  | Совмещенный | Есть балкон | Отделка — |
Нет
|
|---|
Выберите условия покупки
Забронируйте объект по телефону
Онлайн-бронирование временно недоступно