Top.Mail.Ru

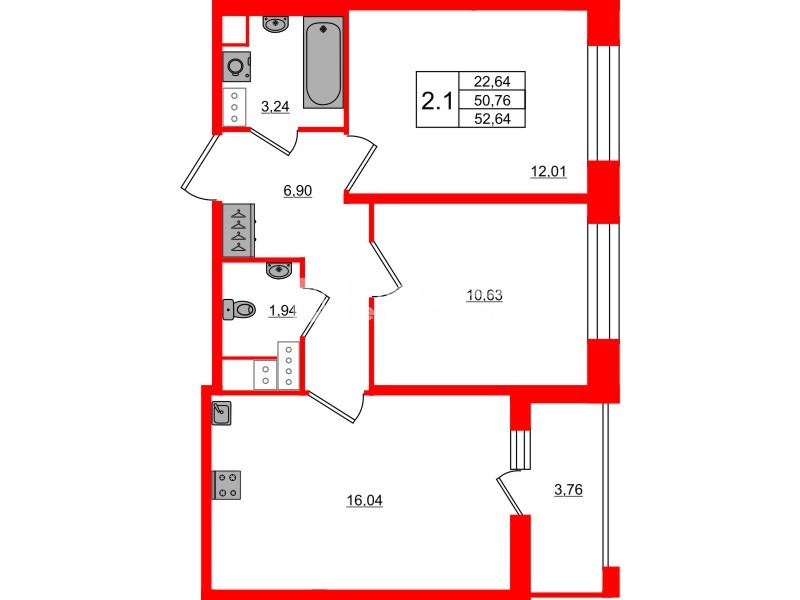
3е комнатная квартира 50.76 м², № 1042

Квартира в ЖК Астра Континенталь, 2 комнатная, 50.76 м², 3 этаж
Квартира в ЖК Астра Континенталь, 2 комнатная, 50.76 м², 3 этаж
50,76 м² 22,64 м² 16,04 м² 2.77 м 3 из 12
Общая площадь Площадь комнат Площадь кухни Высота потолка Этаж
Тип санузла:  Раздельный Лоджия Отделка — 
Норд Лайн светлый плюс

Условия покупки

Квартира с отделкой: первый взнос от 5,5 млн |
*Подробнее
Скидка на квартиру 1,8 млн рублей |
*Подробнее
Суперставка: Семейная ипотека от 2,2% |
*Подробнее
Встреча на объекте

Посмотрите жилой комплекс и оцените преимущества

Выберите условия покупки
Перейти к сравнению