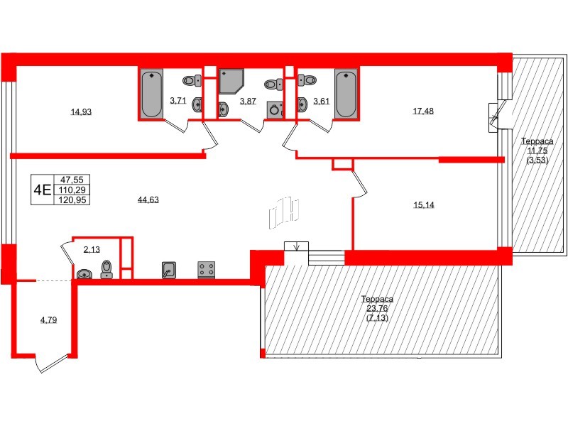
4е комнатная квартира 122.12 м², № 43
ЖК «AVANT» , БАЛАНС
Срок сдачи — II кв. 2027 г.
| 122,12 м² | 47,55 м² | 44,63 м² | 3.05 м | 2 из 7 |
| Общая площадь | Площадь комнат | Площадь кухни | Высота потолка | Этаж |
|---|
| Три санузла | Отделка — |
Нет
|
|---|
Уникальные квартиры
Выберите условия покупки
Забронируйте объект по телефону
Онлайн-бронирование временно недоступно