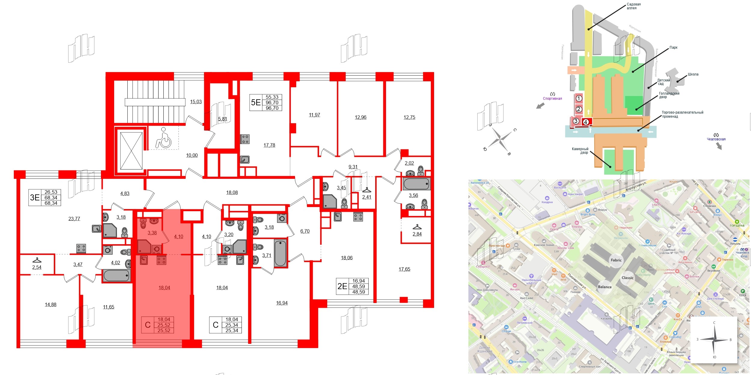
Студия 25.57 м², № 92
ЖК «AVANT» , БАЛАНС
Срок сдачи — II кв. 2027 г.
| 25,57 м² | 18,04 м² | 3.05 м | 5 из 8 |
| Общая площадь | Площадь комнат | Высота потолка | Этаж |
|---|
| Тип санузла:  | Совмещенный | Балкон - нет | Отделка — |
Нет
|
|---|
Выберите условия покупки
Забронируйте объект по телефону
Онлайн-бронирование временно недоступно