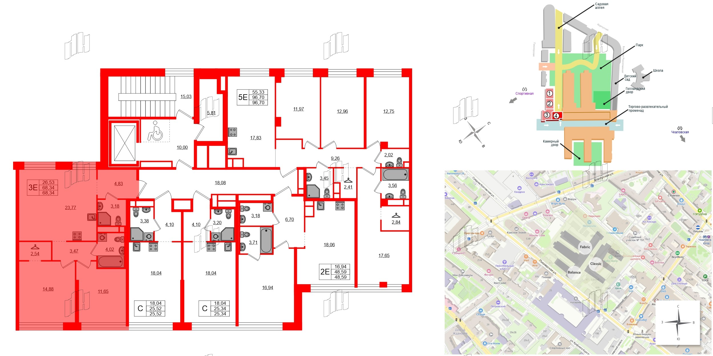
3е комнатная квартира 68.45 м², № 98
ЖК «AVANT» , БАЛАНС
Срок сдачи — II кв. 2027 г.
| 68,45 м² | 26,53 м² | 23,77 м² | 3.05 м | 6 из 8 |
| Общая площадь | Площадь комнат | Площадь кухни | Высота потолка | Этаж |
|---|
| Два санузла | Балкон - нет | Отделка — |
Нет
|
|---|
Выберите условия покупки
Забронируйте объект по телефону
Онлайн-бронирование временно недоступно