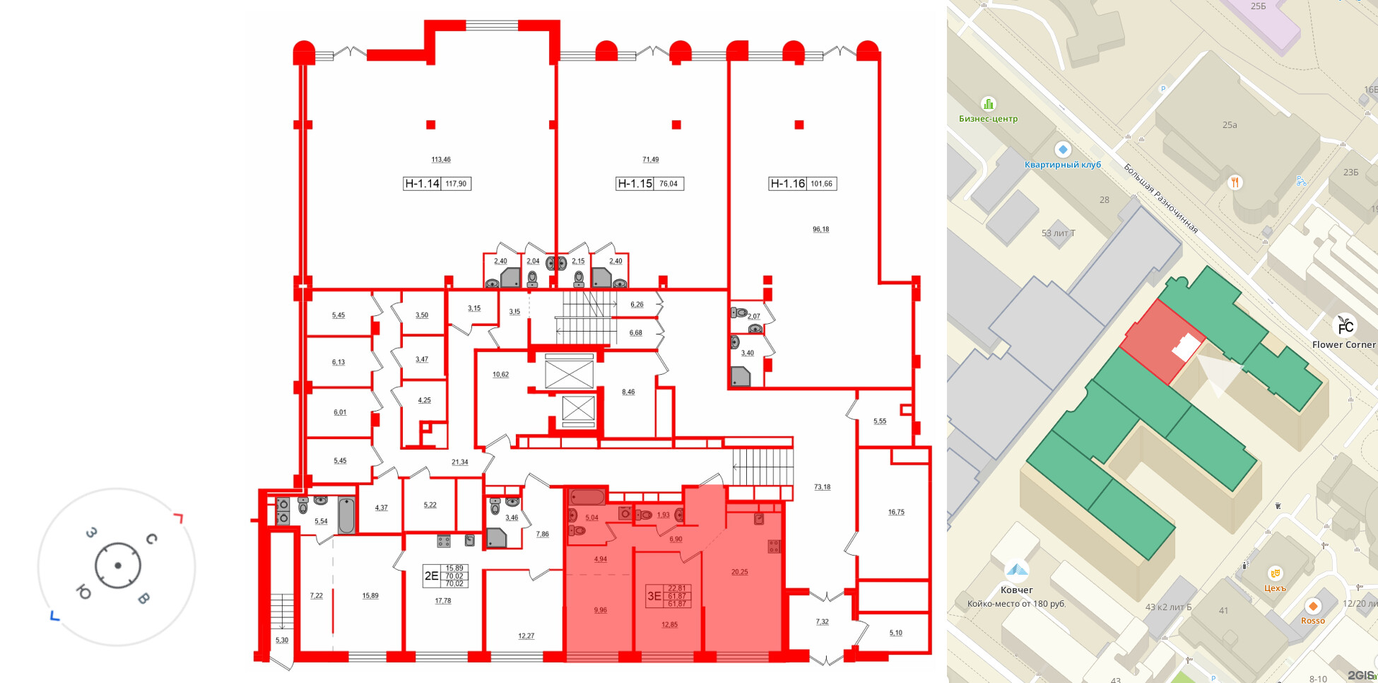
2е комнатная квартира 61.87 м², № 293
ЖК «AVANT» , КЛАССИК
Срок сдачи — II кв. 2027 г.
| 61,87 м² | 22,81 м² | 20,25 м² | 3.58 м | 1 из 9 |
| Общая площадь | Площадь комнат | Площадь кухни | Высота потолка | Этаж |
|---|
| Два санузла | Балкон - нет | Отделка — |
Нет
|
|---|
Выберите условия покупки
Забронируйте объект по телефону
Онлайн-бронирование временно недоступно