Top.Mail.Ru

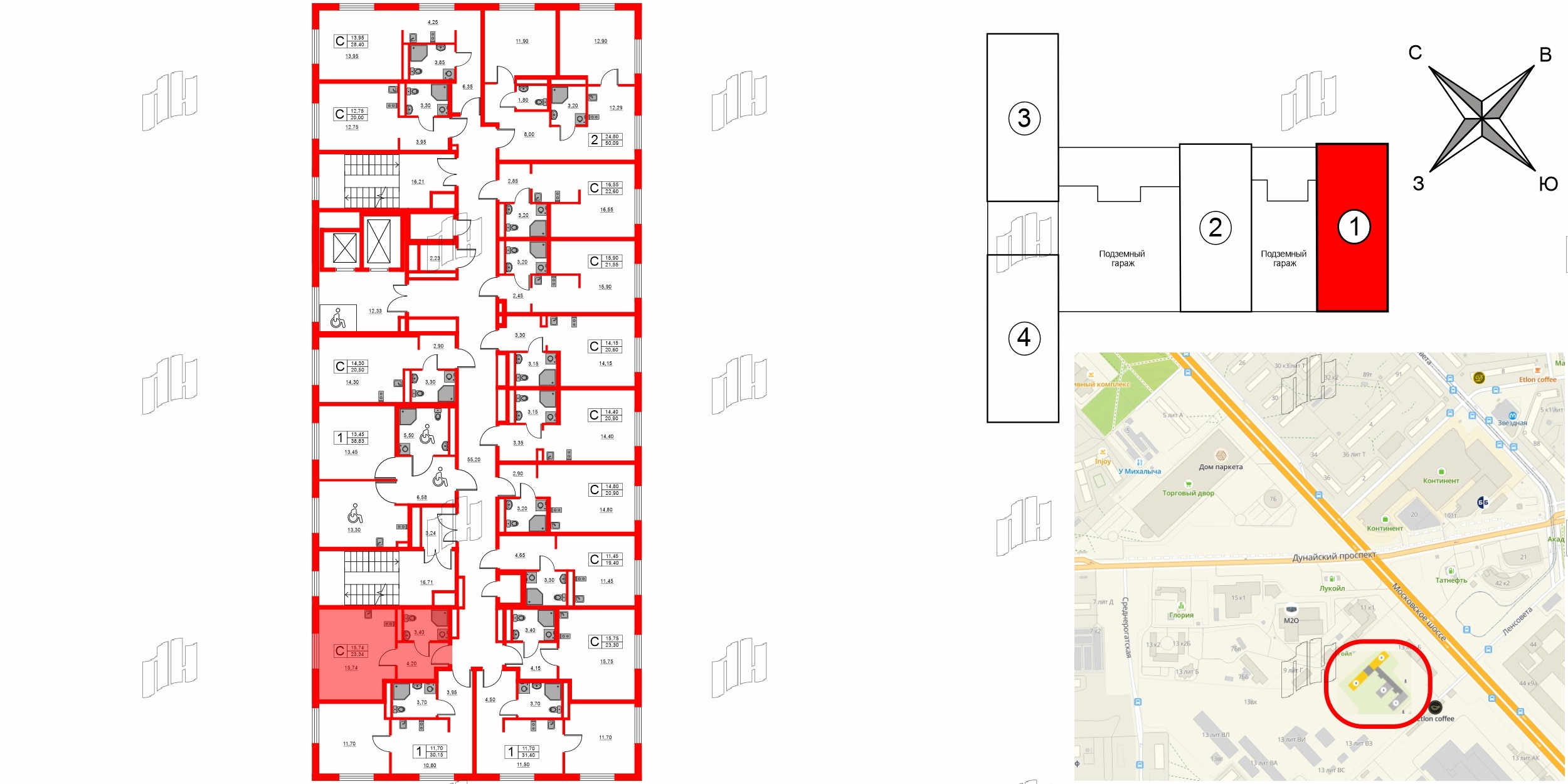
Студия 23.34 м², № 141

Апартаменты в ЖК «Авеню Апарт Пулково», студия, 23.34 м², 10 этаж
Апартаменты в ЖК «Авеню Апарт Пулково», студия, 23.34 м², 10 этаж
23,34 м² 15,74 м² 2.75 м 10 из 16
Общая площадь Площадь комнат Высота потолка Этаж
Тип санузла:  Совмещенный Балкон - нет Отделка — 
Чистовая Avenue
Выберите условия покупки
Перейти к сравнению