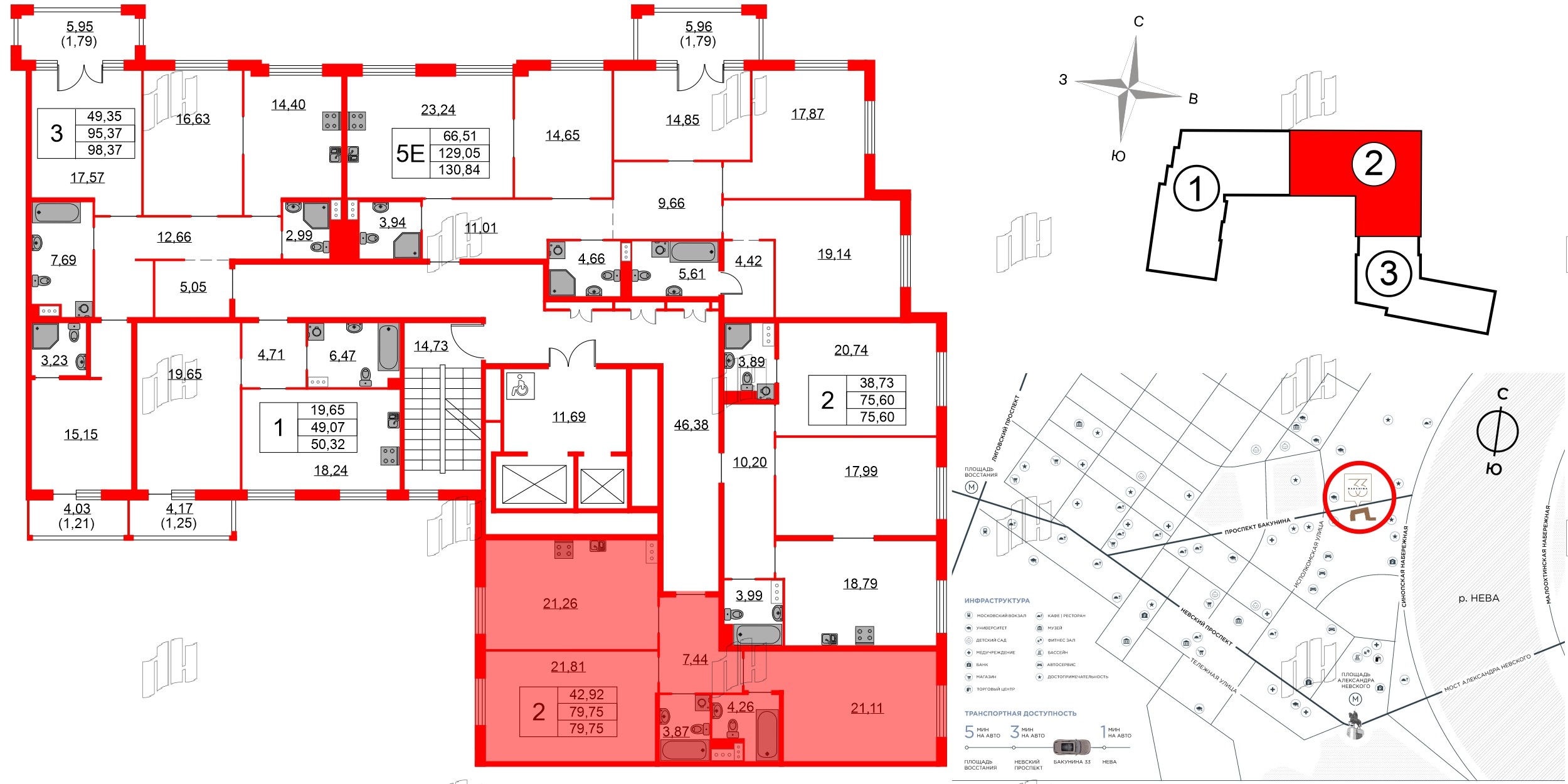
2 комнатная квартира 79.75 м², № 78
ЖК Бакунина 33 ЖК , Корпус 2
Срок сдачи — Сдан
| 79,75 м² | 42,92 м² | 21,26 м² | 3 м | 7 из 9 |
| Общая площадь | Площадь комнат | Площадь кухни | Высота потолка | Этаж |
|---|
| Два санузла | Балкон - нет | Отделка — |
Нет
|
|---|
Выберите условия покупки
Забронируйте объект по телефону
Онлайн-бронирование временно недоступно