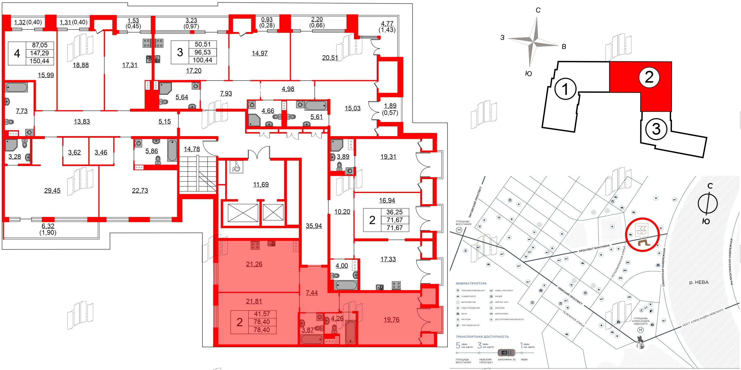
2 комнатная квартира 78.4 м², № 86
ЖК Бакунина 33 ЖК , Корпус 2
Срок сдачи — Сдан
| 78,40 м² | 41,57 м² | 21,26 м² | 3.5 м | 9 из 9 |
| Общая площадь | Площадь комнат | Площадь кухни | Высота потолка | Этаж |
|---|
| Два санузла | Балкон - нет | Отделка — |
Нет
|
|---|
Выберите условия покупки
Забронируйте объект по телефону
Онлайн-бронирование временно недоступно