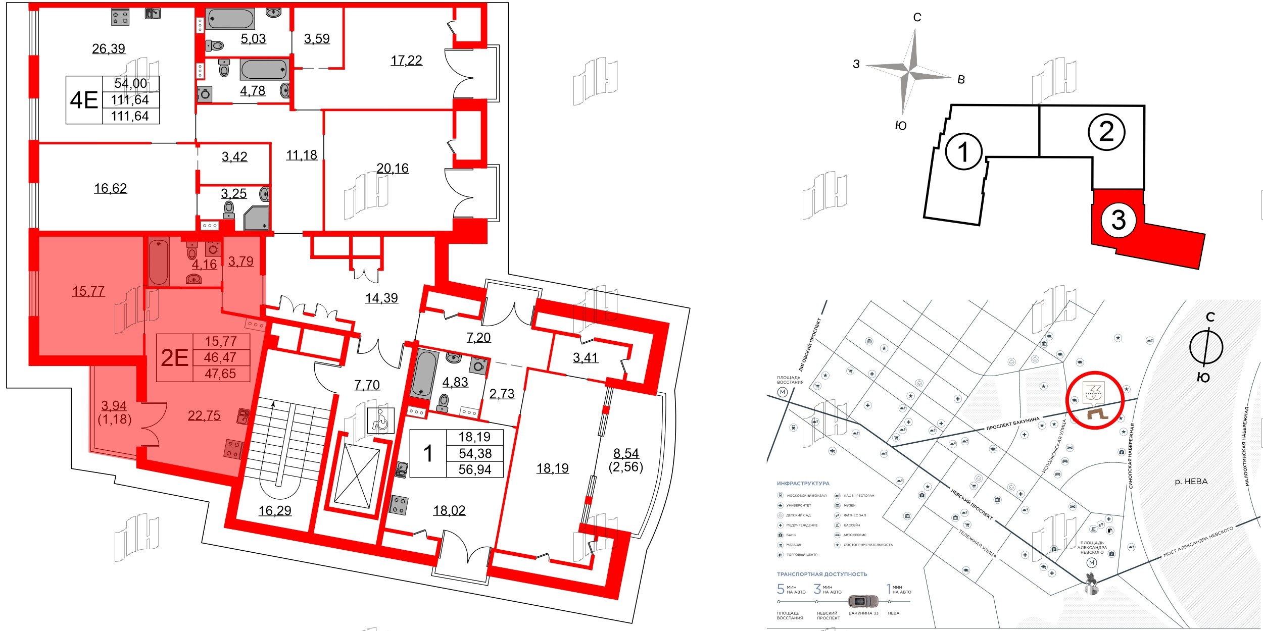
2е комнатная квартира 47.65 м², № 111
ЖК Бакунина 33 ЖК , Корпус 3
Срок сдачи — Сдан
| 47,65 м² | 15,77 м² | 22,75 м² | 3.5 м | 9 из 9 |
| Общая площадь | Площадь комнат | Площадь кухни | Высота потолка | Этаж |
|---|
| Тип санузла:  | Совмещенный | Есть балкон | Отделка — |
Нет
|
|---|
Выберите условия покупки
Забронируйте объект по телефону
Онлайн-бронирование временно недоступно