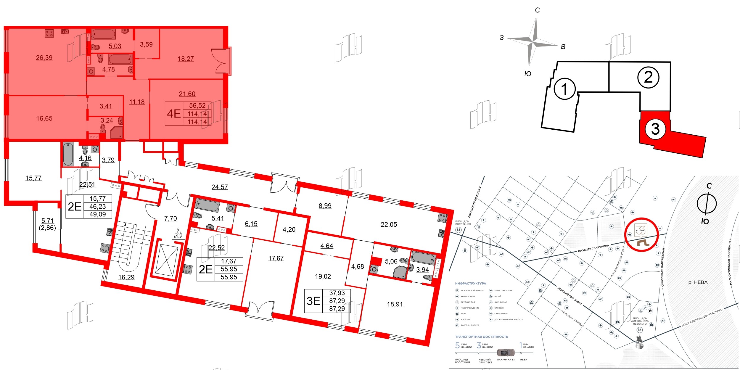
4е комнатная квартира 114.14 м², № 92
ЖК Бакунина 33 ЖК , Корпус 3
Срок сдачи — Сдан
| 114,14 м² | 56,52 м² | 26,39 м² | 3 м | 3 из 9 |
| Общая площадь | Площадь комнат | Площадь кухни | Высота потолка | Этаж |
|---|
| Три санузла | Балкон - нет | Отделка — |
Нет
|
|---|
Выберите условия покупки
Забронируйте объект по телефону
Онлайн-бронирование временно недоступно