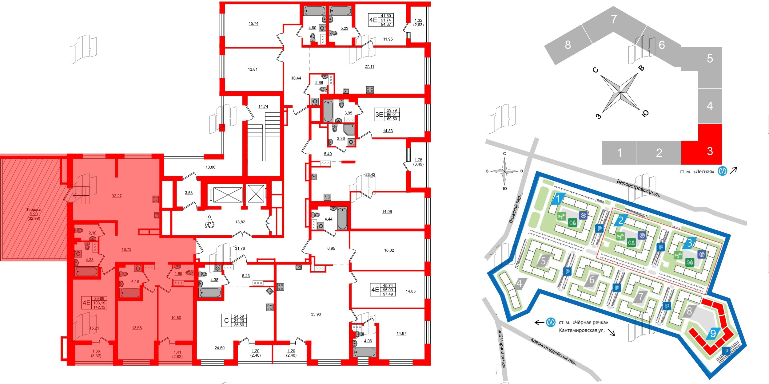
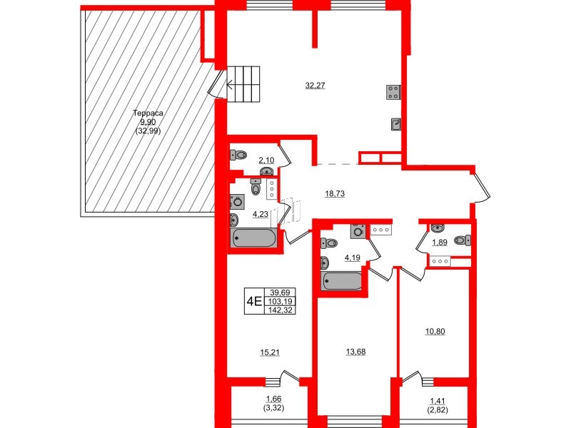
4е комнатная квартира 142.32 м², № 182
ЖК «Черная Речка» , Корпус 9
Срок сдачи — Сдан
| 142,32 м² | 39,69 м² | 32,27 м² | 2.75 м | 13 из 13 |
| Общая площадь | Площадь комнат | Площадь кухни | Высота потолка | Этаж |
|---|
| Четыре санузла | Отделка — |
Нет
|
|---|
Уникальные квартиры
Выберите условия покупки
Забронируйте объект по телефону
Онлайн-бронирование временно недоступно