Top.Mail.Ru

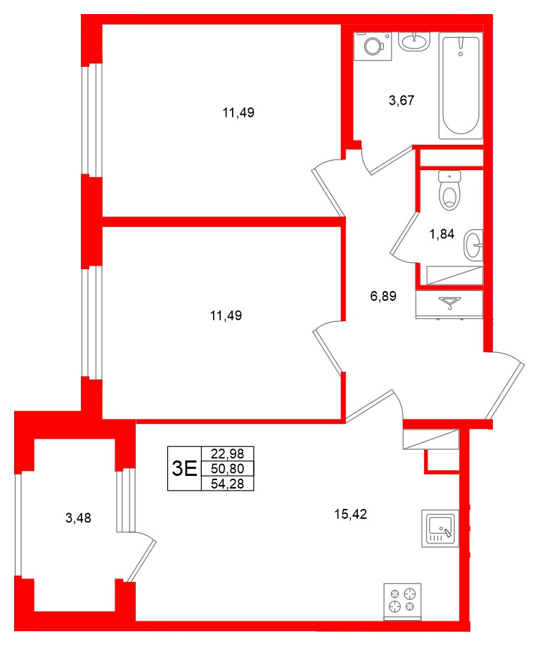
3е комнатная квартира 50.8 м², № 177

Квартира в ЖК «Дубровский», 2 комнатная, 50.8 м², 4 этаж
Квартира в ЖК «Дубровский», 2 комнатная, 50.8 м², 4 этаж
50,80 м² 22,98 м² 15,42 м² от 2.77 до 3 м 4 из 4
Общая площадь Площадь комнат Площадь кухни Высота потолка Этаж
Тип санузла:  Раздельный Лоджия Отделка — 
Отделка ЖК Дубровский «NEW»
Отделка ЖК Дубровский «NEW»
Выберите условия покупки
Перейти к сравнению