Top.Mail.Ru

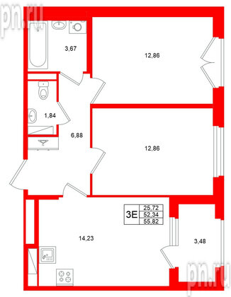
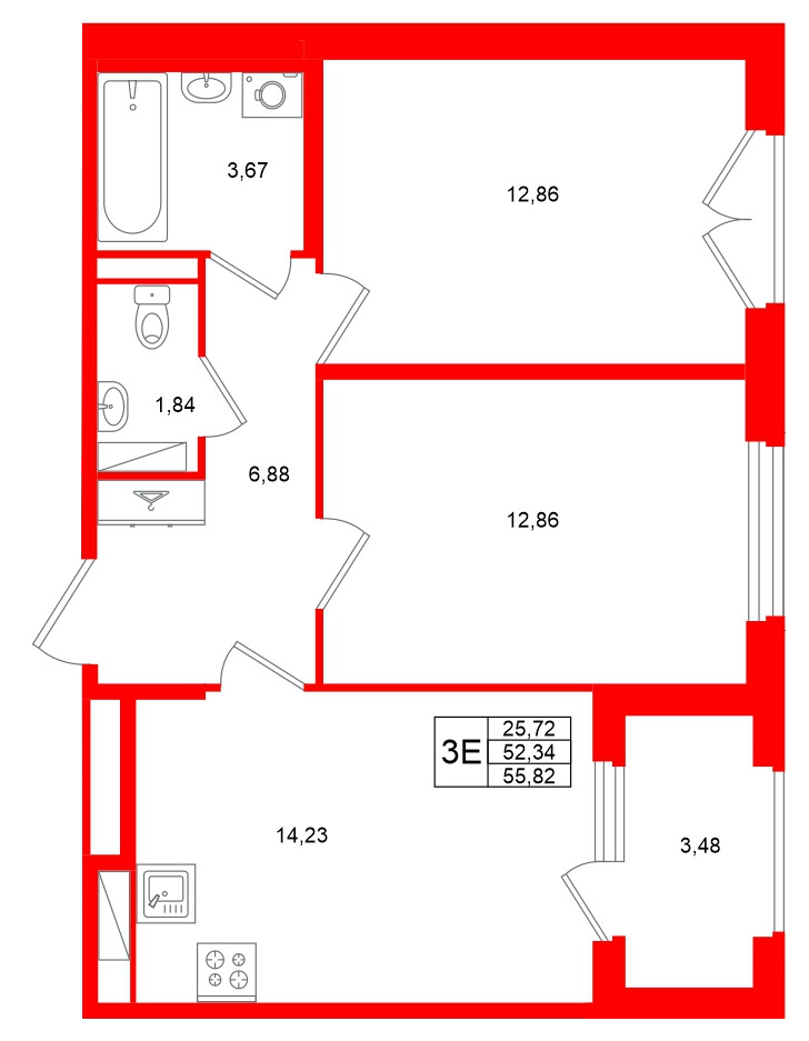
3е комнатная квартира 52.34 м², № 180

Квартира в ЖК «Дубровский», 2 комнатная, 52.34 м², 4 этаж
Квартира в ЖК «Дубровский», 2 комнатная, 52.34 м², 4 этаж
52,34 м² от 2.77 до 3 м 4 из 4
Общая площадь Высота потолка Этаж
Отделка — 
Отделка ЖК Дубровский «NEW»
Отделка ЖК Дубровский «NEW»
Выберите условия покупки
Перейти к сравнению