Top.Mail.Ru

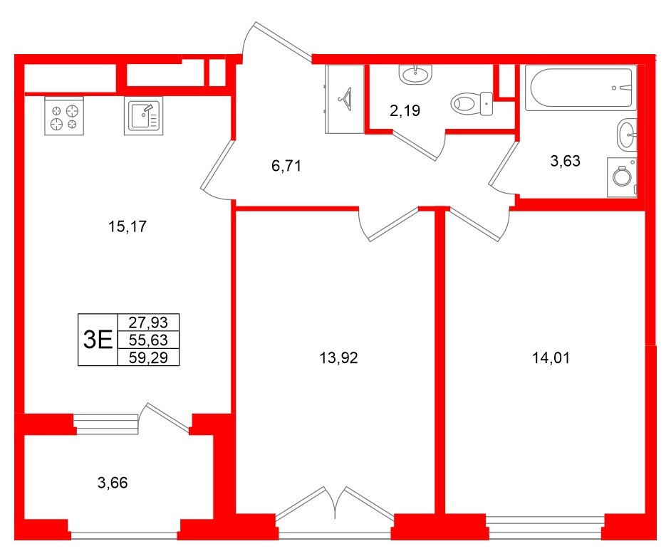
3е комнатная квартира 55.63 м², № 231

Квартира в ЖК «Дубровский», 2 комнатная, 55.63 м², 2 этаж
Квартира в ЖК «Дубровский», 2 комнатная, 55.63 м², 2 этаж
55,63 м² 27,93 м² 15,17 м² от 2.77 до 3 м 2 из 4
Общая площадь Площадь комнат Площадь кухни Высота потолка Этаж
Тип санузла:  Раздельный Лоджия Отделка — 
Отделка ЖК Дубровский «NEW»
Отделка ЖК Дубровский «NEW»
Выберите условия покупки
Перейти к сравнению