Top.Mail.Ru

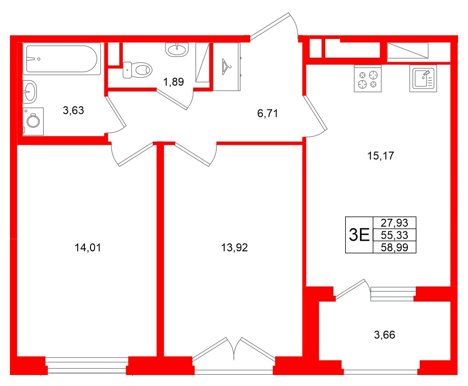
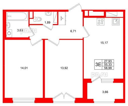
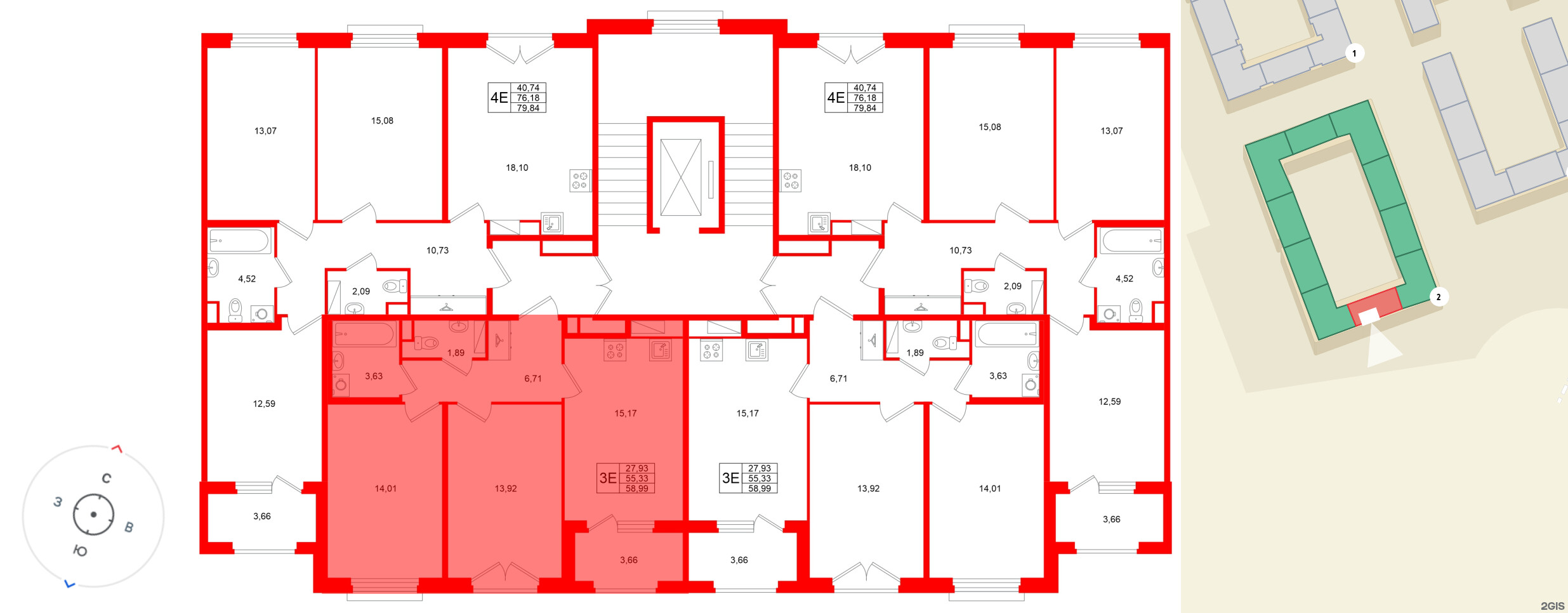
3е комнатная квартира 55.33 м², № 240

Квартира в ЖК «Дубровский», 2 комнатная, 55.33 м², 4 этаж
Квартира в ЖК «Дубровский», 2 комнатная, 55.33 м², 4 этаж
55,33 м² 27,93 м² 15,17 м² от 2.77 до 3 м 4 из 4
Общая площадь Площадь комнат Площадь кухни Высота потолка Этаж
Тип санузла:  Раздельный Лоджия Отделка — 
Отделка ЖК Дубровский «NEW»
Отделка ЖК Дубровский «NEW»
Выберите условия покупки
Перейти к сравнению