Главная
Новостройки
Дуэт
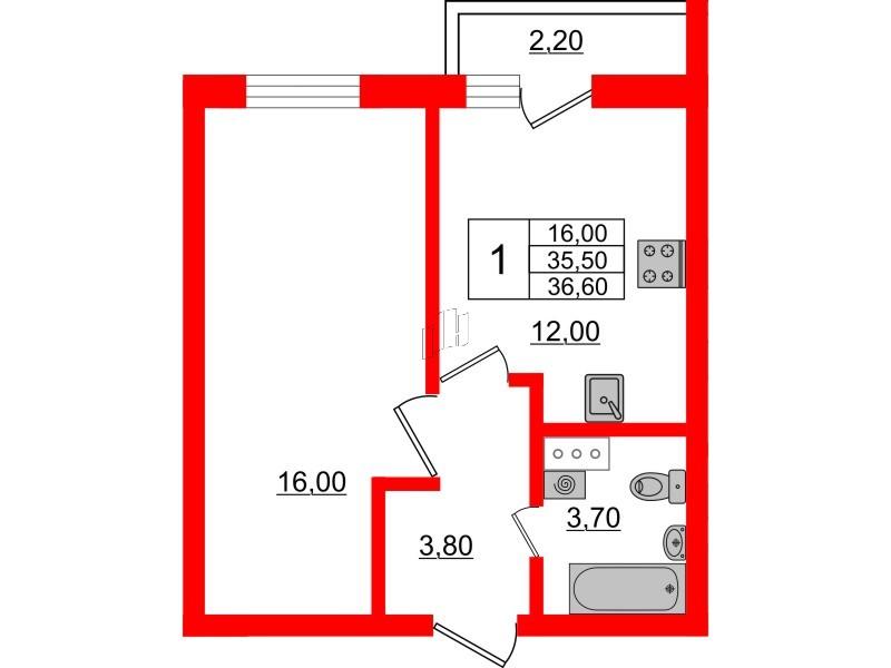
1 комн. кв. 36.8 м²
1 комнатная квартира 36.8 м², № 29
ЖК «Дуэт»
, Дом 184
Срок сдачи — Сдан
В
избранном
избранное
Удалить из сравнения
Сравнить
Распечатать
Отправить по почте
Планировка
На этаже
На карте
Меблировка
36,80 м²
16,40 м²
12,00 м²
3 из 8
Общая площадь
Площадь комнат
Площадь кухни
Этаж
Тип санузла: 
Совмещенный
Есть балкон
Отделка —
Нет
Запросить цену
100% оплата
Ипотека
от 3 700
₽/мес.
Выбрать условия
Доступные опции
Меблировка
от 224 000 руб.
Выберите условия покупки
Забронируйте объект по телефону
Онлайн-бронирование временно недоступно
Перейти к сравнению
Закрыть