Главная
Новостройки
Дуэт
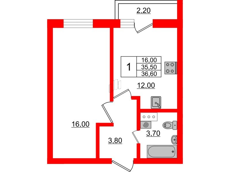
1 комн. кв. 36.8 м²
1 комнатная квартира 36.8 м², № 77
ЖК «Дуэт»
, Дом 184
Срок сдачи — Сдан
В
избранном
избранное
Удалить из сравнения
Сравнить
Распечатать
Отправить по почте
Планировка
На этаже
На карте
Отделка
Меблировка
Черновая
Эконом Селия
Эконом Наварра
Комфорт Дерево
Комфорт Камень
Комфорт Мрамор
Стандарт Дерево
Стандарт Камень
Стандарт Мрамор
36,80 м²
16,40 м²
12,00 м²
7 из 8
Общая площадь
Площадь комнат
Площадь кухни
Этаж
Тип санузла: 
Совмещенный
Есть балкон
Отделка —
White Box
Запросить цену
100% оплата
Ипотека
от 3 990
₽/мес.
Выбрать условия
Доступные опции
Меблировка
от 224 000 руб.
Отделка
включена
Выберите условия покупки
Забронируйте объект по телефону
Онлайн-бронирование временно недоступно
Перейти к сравнению
Закрыть