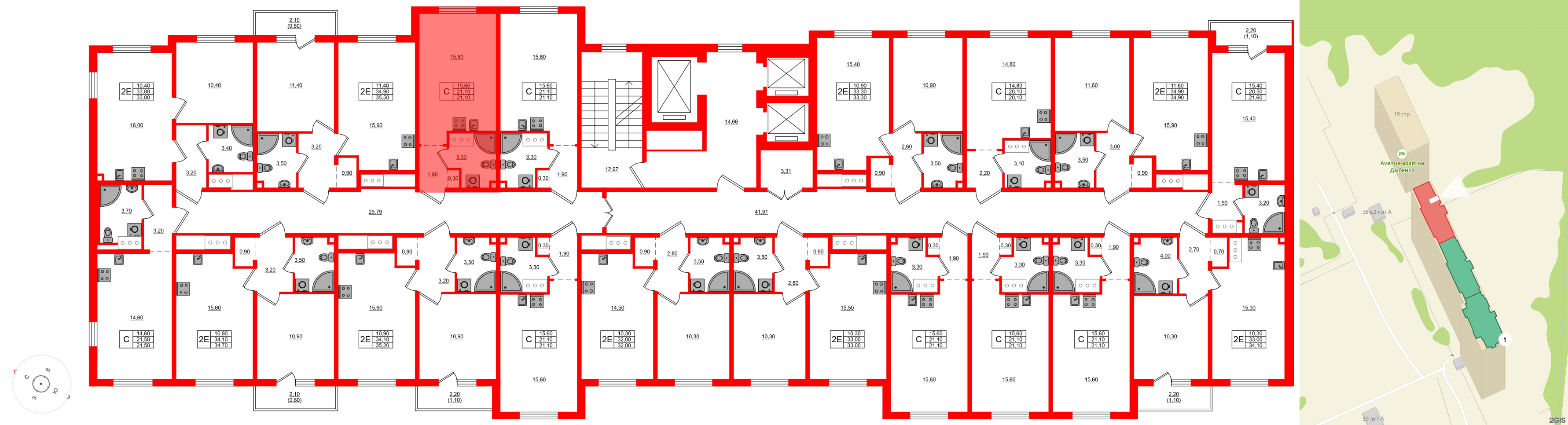
Студия 21.1 м², № 92
ЖК Дыбенко Парк , Корпус 1
Срок сдачи — IV кв. 2027 г.
| 21,10 м² | 15,60 м² | 2.7 м | 7 из 22 |
| Общая площадь | Площадь комнат | Высота потолка | Этаж |
|---|
| Тип санузла:  | Совмещенный | Балкон - нет | Отделка — |
|---|
Выберите условия покупки
Забронируйте объект по телефону
Онлайн-бронирование временно недоступно