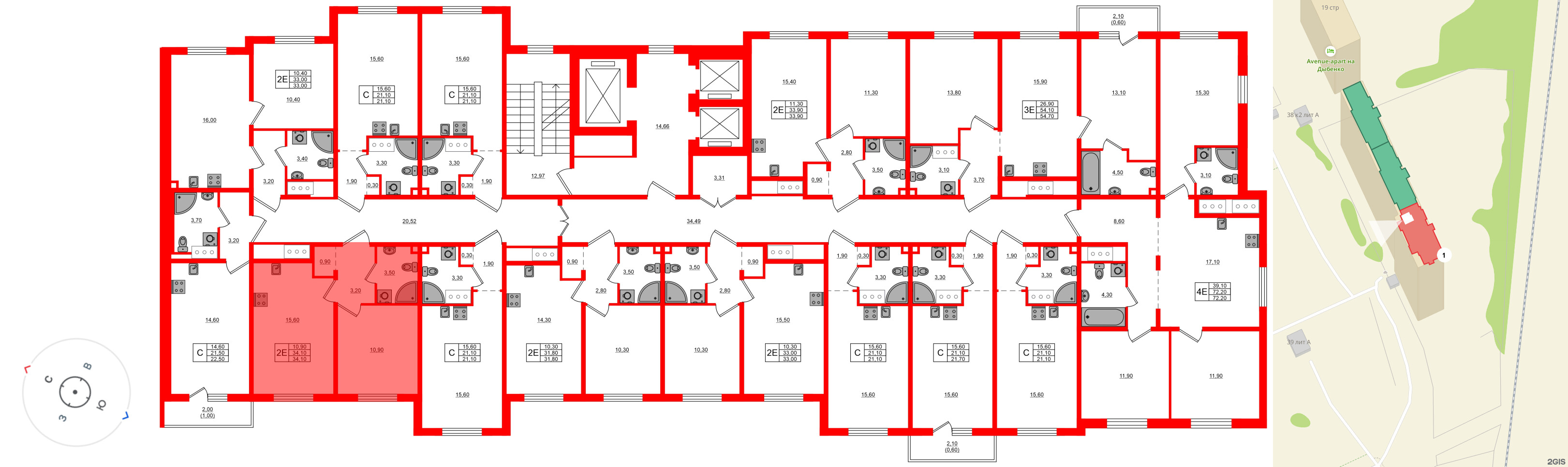
2е комнатная квартира 34.1 м², № 891
ЖК Дыбенко Парк , Корпус 1
Срок сдачи — IV кв. 2027 г.
| 34,10 м² | 10,90 м² | 15,60 м² | 2.7 м | 17 из 22 |
| Общая площадь | Площадь комнат | Площадь кухни | Высота потолка | Этаж |
|---|
| Тип санузла:  | Совмещенный | Балкон - нет | Отделка — |
|---|
Выберите условия покупки
Забронируйте объект по телефону
Онлайн-бронирование временно недоступно