Top.Mail.Ru

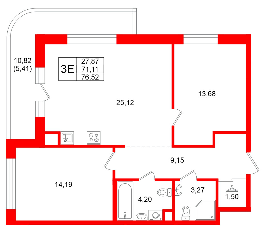
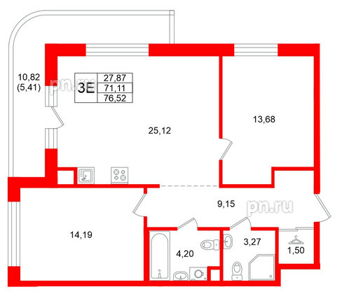
3е комнатная квартира 76.52 м², № 108

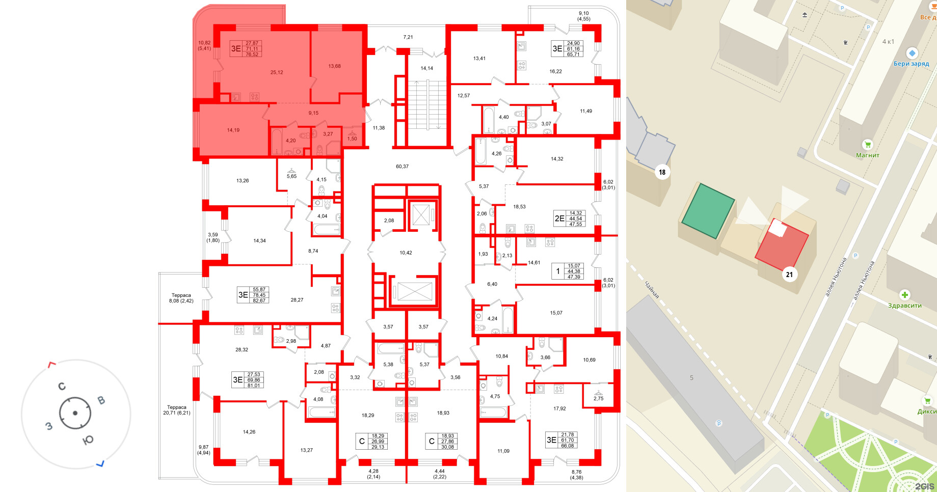
Квартира в ЖК Энфилд, 2 комнатная, 76.52 м², 2 этаж
Квартира в ЖК Энфилд, 2 комнатная, 76.52 м², 2 этаж
76,52 м² 27,87 м² 25,12 м² 2.75 м 2 из 12
Общая площадь Площадь комнат Площадь кухни Высота потолка Этаж
Два санузла Лоджия Отделка — 

Уникальные квартиры

Квартира с гардеробной
Подробнее о преимуществе

Выберите условия покупки
Перейти к сравнению