Главная
Новостройки
Эко Гармония
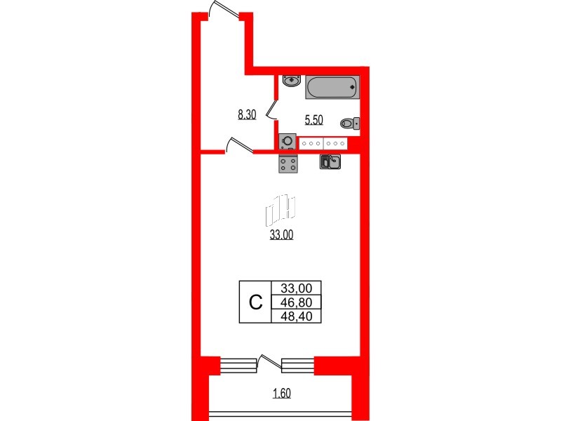
Студия 48.4 м²
Студия 48.4 м², № 44
ЖК Эко Гармония
, Корпус 1.1
Срок сдачи — Сдан
В
избранном
избранное
Удалить из сравнения
Сравнить
Распечатать
Отправить по почте
Планировка
На этаже
На карте
Меблировка
48,40 м²
33,00 м²
2.76 м
6 из 9
Общая площадь
Площадь комнат
Высота потолка
Этаж
Тип санузла: 
Совмещенный
Лоджия
Отделка —
Нет
Запросить цену
100% оплата
Ипотека
от 8 981
₽/мес.
Выбрать условия
Доступные опции
Меблировка
от 224 000 руб.
Выберите условия покупки
Забронируйте объект по телефону
Онлайн-бронирование временно недоступно
Перейти к сравнению
Закрыть