Top.Mail.Ru

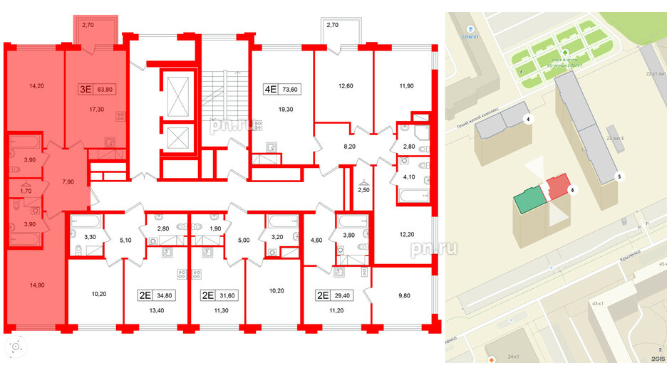
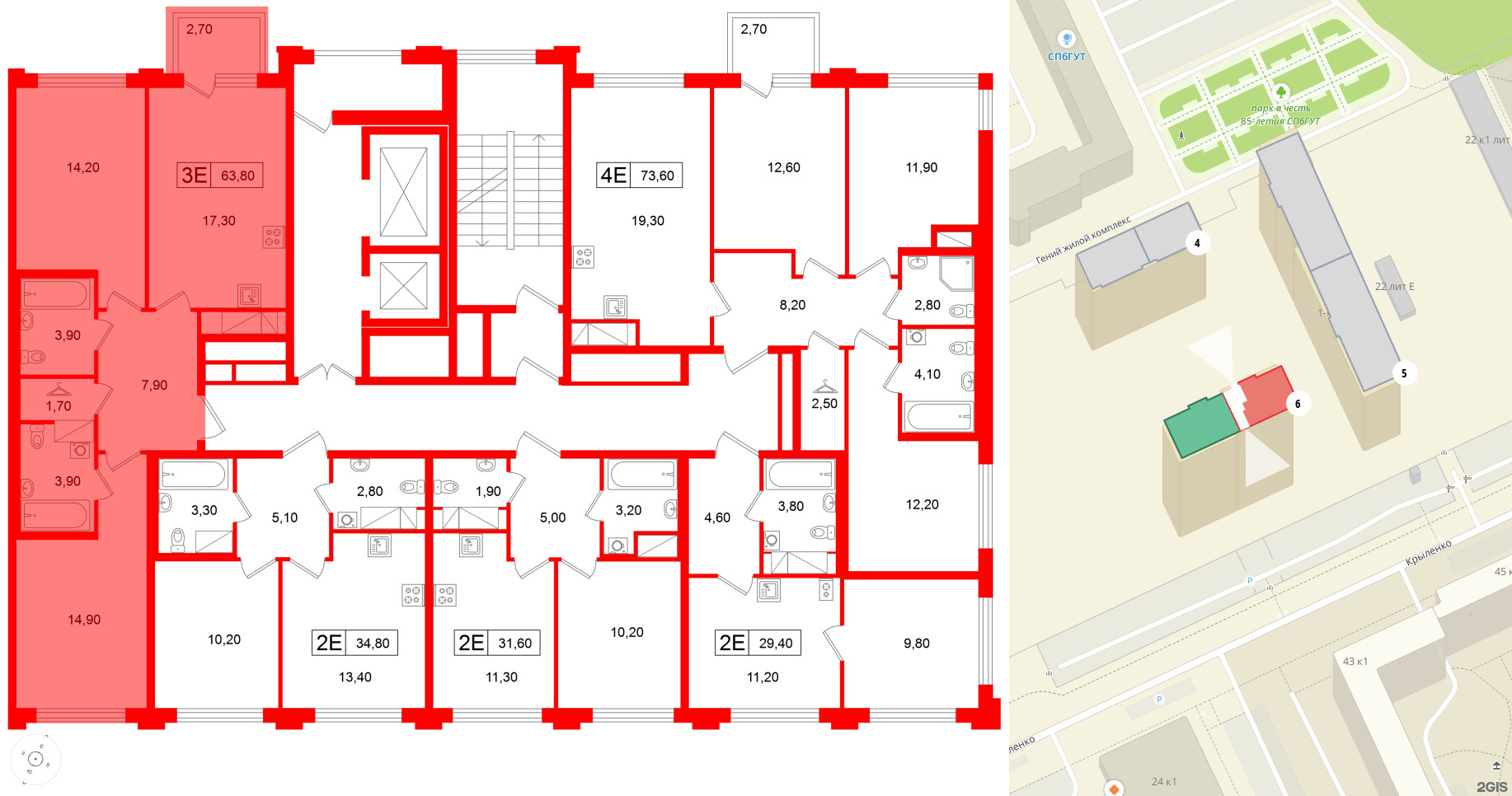
3е комнатная квартира 63.8 м², № 1141

Квартира в ЖК Гений, 2 комнатная, 63.8 м², 6 этаж
Квартира в ЖК Гений, 2 комнатная, 63.8 м², 6 этаж
63,80 м² 29,10 м² 17,30 м² 2.7 м 6 из 20
Общая площадь Площадь комнат Площадь кухни Высота потолка Этаж
Два санузла Есть балкон Отделка — 
White Box
Выберите условия покупки
Перейти к сравнению