Top.Mail.Ru

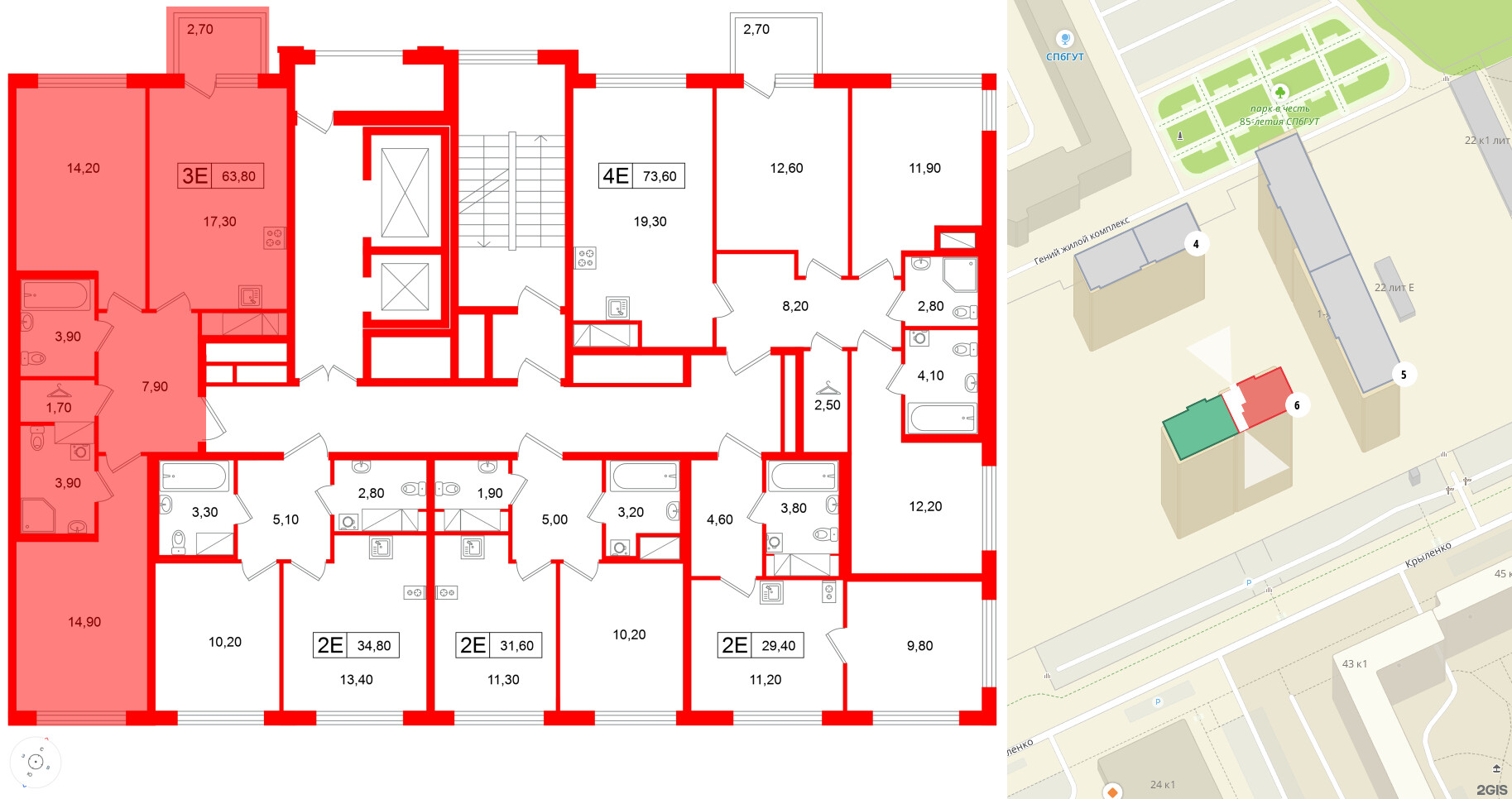
3е комнатная квартира 63.8 м², № 1156

Квартира в ЖК «Гений», 2 комнатная, 63.8 м², 9 этаж
Квартира в ЖК «Гений», 2 комнатная, 63.8 м², 9 этаж
63,80 м² 29,10 м² 17,30 м² 2.7 м 9 из 20
Общая площадь Площадь комнат Площадь кухни Высота потолка Этаж
Два санузла Есть балкон Отделка — 
Уайт Бокс
Выберите условия покупки
Перейти к сравнению