Top.Mail.Ru

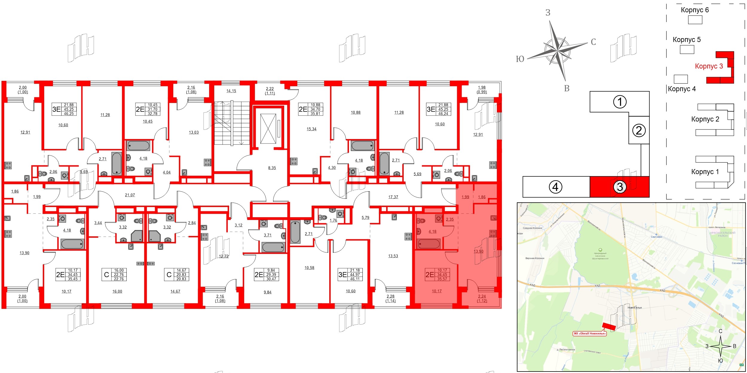
2е комнатная квартира 35.57 м², № 195

Квартира в ЖК GloraX Новоселье, 1 комнатная, 35.57 м², 6 этаж
Квартира в ЖК GloraX Новоселье, 1 комнатная, 35.57 м², 6 этаж
35,57 м² 10,17 м² 13,90 м² 2.5 м 6 из 9
Общая площадь Площадь комнат Площадь кухни Высота потолка Этаж
Тип санузла:  Совмещенный Есть балкон Отделка — 
Чистовая
Выберите условия покупки
Перейти к сравнению