Top.Mail.Ru

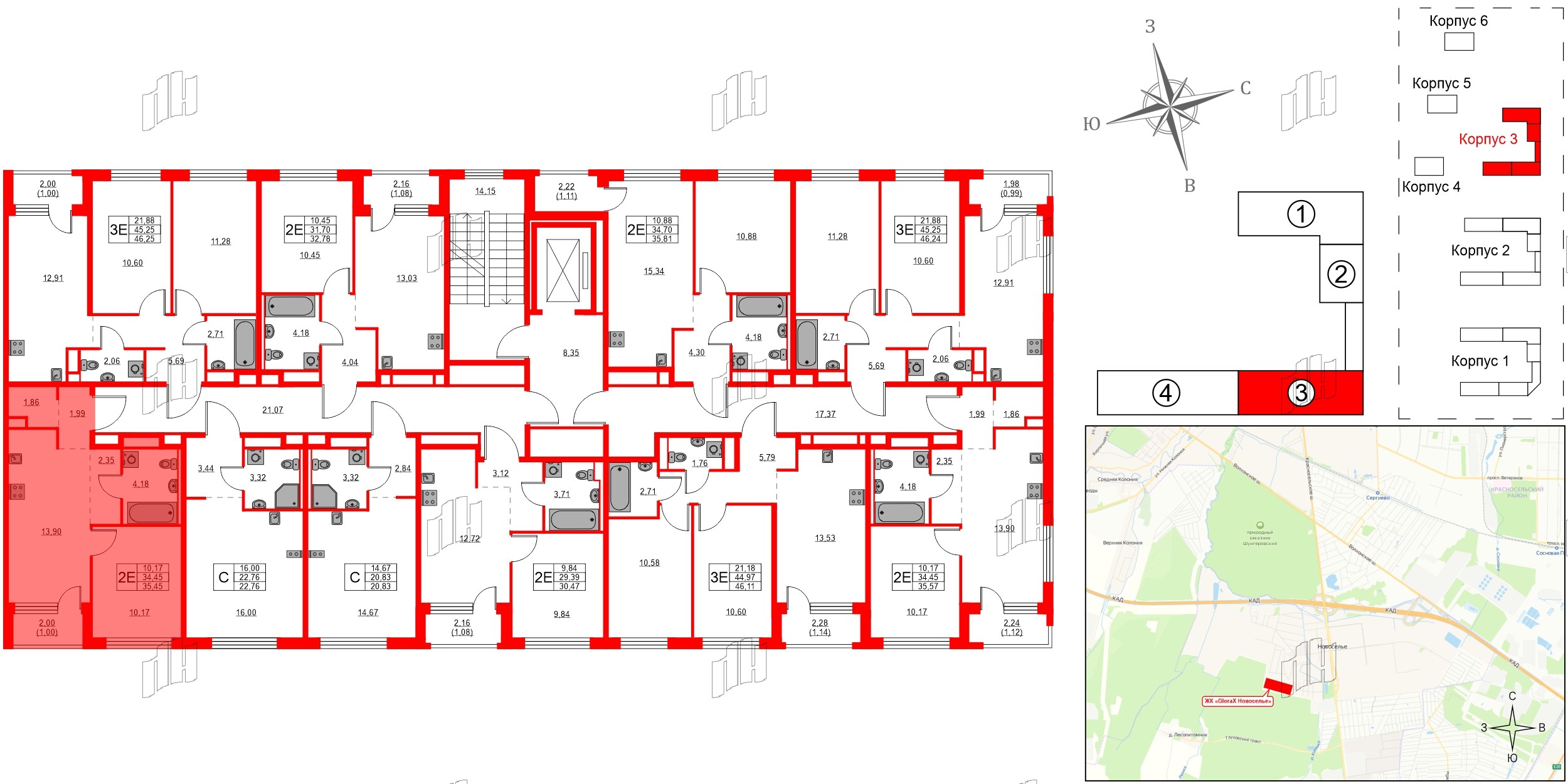
2е комнатная квартира 35.45 м², № 220

Квартира в ЖК GloraX Новоселье, 1 комнатная, 35.45 м², 8 этаж
Квартира в ЖК GloraX Новоселье, 1 комнатная, 35.45 м², 8 этаж
35,45 м² 10,17 м² 13,90 м² 2.5 м 8 из 9
Общая площадь Площадь комнат Площадь кухни Высота потолка Этаж
Тип санузла:  Совмещенный Лоджия Отделка — 
Чистовая
Выберите условия покупки
Перейти к сравнению