Top.Mail.Ru

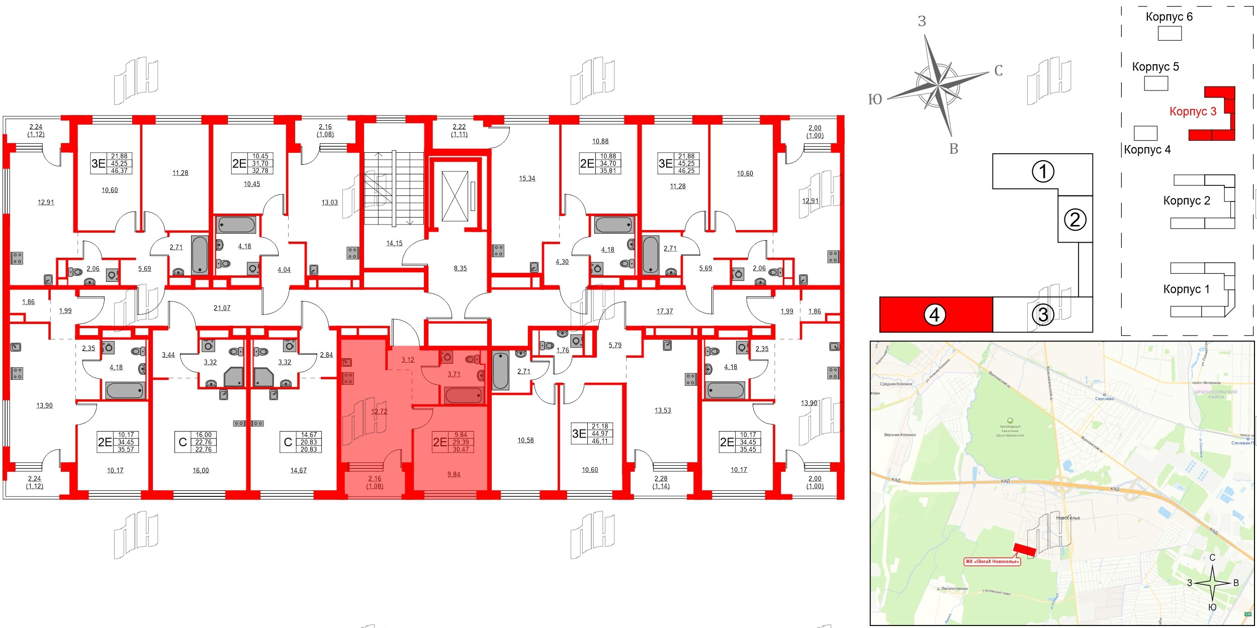
2е комнатная квартира 30.47 м², № 287

Квартира в ЖК GloraX Новоселье, 1 комнатная, 30.47 м², 6 этаж
Квартира в ЖК GloraX Новоселье, 1 комнатная, 30.47 м², 6 этаж
30,47 м² 9,84 м² 12,72 м² 2.5 м 6 из 9
Общая площадь Площадь комнат Площадь кухни Высота потолка Этаж
Тип санузла:  Совмещенный Лоджия Отделка — 
Чистовая
Выберите условия покупки
Перейти к сравнению