Top.Mail.Ru

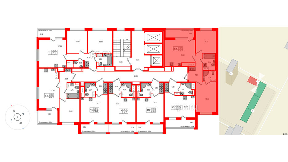
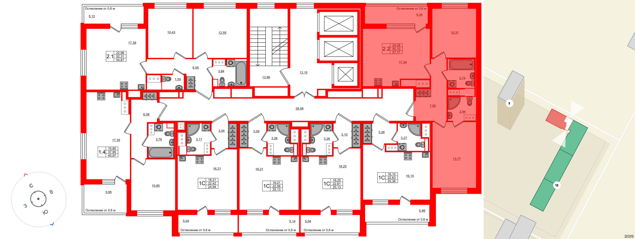
3е комнатная квартира 55.1 м², № 133

Квартира в ЖК «Город звёзд», 2 комнатная, 55.1 м², 20 этаж
Квартира в ЖК «Город звёзд», 2 комнатная, 55.1 м², 20 этаж
55,10 м² 24,08 м² 17,34 м² 2.77 м 20 из 21
Общая площадь Площадь комнат Площадь кухни Высота потолка Этаж
Лоджия Отделка — 
Норд Лайн серый

Уникальные квартиры

Условия покупки

Квартира с отделкой 18 000 руб в месяц |
*Подробнее
Квартиры в рассрочку для всех | 3 года без платежей
3 года без платежей
*Подробнее
Квартира каждому от 17 тыс. руб. в месяц |
*Подробнее
Квартира с отделкой. Первый платеж 415 тыс. руб. | Ипотека 17 000 ₽ в месяц
Ипотека 17 000 ₽ в месяц
*Подробнее
Встреча на объекте

Посмотрите жилой комплекс и оцените преимущества

Выберите условия покупки
Перейти к сравнению