Top.Mail.Ru

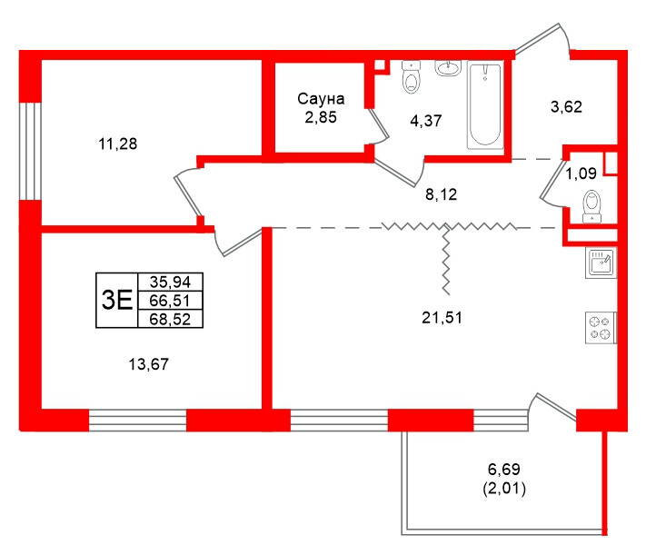
2 комнатная квартира 68.52 м², № 14

Квартира в ЖК Grona Lund, 2 комнатная, 68.52 м², 2 этаж
Квартира в ЖК Grona Lund, 2 комнатная, 68.52 м², 2 этаж
68,52 м² 2 из 6
Общая площадь Этаж
Отделка — 
Да
Выберите условия покупки
Перейти к сравнению