Top.Mail.Ru

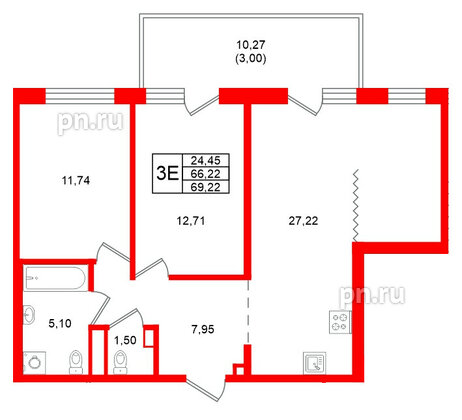
3е комнатная квартира 69.22 м², № 32

Квартира в ЖК «Грена Лунд», 2 комнатная, 69.22 м², 4 этаж
Квартира в ЖК «Грена Лунд», 2 комнатная, 69.22 м², 4 этаж
69,22 м² 24,45 м² 27,22 м² 2.72 м 4 из 6
Общая площадь Площадь комнат Площадь кухни Высота потолка Этаж
Два санузла Есть балкон Отделка — 
Предчистовая
Выберите условия покупки
Перейти к сравнению