Top.Mail.Ru

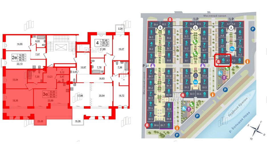
3е комнатная квартира 84.94 м², № 7

Квартира в ЖК Imperial Club, 2 комнатная, 84.94 м², 4 этаж
Квартира в ЖК Imperial Club, 2 комнатная, 84.94 м², 4 этаж
Этаж
  • 4
  • Квартира в ЖК Imperial Club, 2 комнатная, 84.94 м², 4 этаж
84,94 м² 33,90 м² 23,89 м² 3 м 4 из 6
Общая площадь Площадь комнат Площадь кухни Высота потолка Этаж
Два санузла Терраса Отделка — 
Нет

Уникальные квартиры

Выберите условия покупки
Перейти к сравнению