Top.Mail.Ru

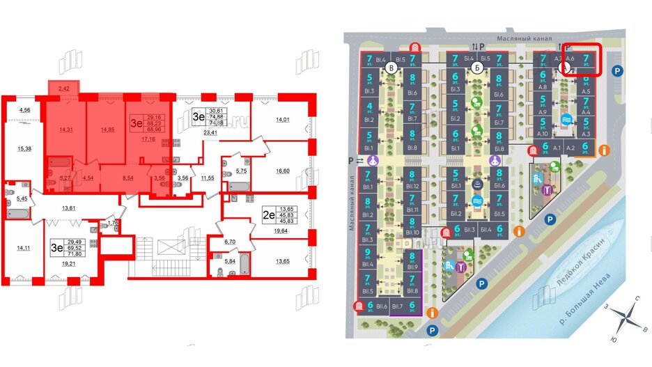
3е комнатная квартира 68.23 м², № 57

Квартира в ЖК «Империал Клаб», 2 комнатная, 68.23 м², 4 этаж
Квартира в ЖК «Империал Клаб», 2 комнатная, 68.23 м², 4 этаж
68,23 м² 29,16 м² 17,16 м² 3 м 4 из 7
Общая площадь Площадь комнат Площадь кухни Высота потолка Этаж
Два санузла Есть балкон Отделка — 
Нет

Уникальные квартиры

Условия покупки

Элит-класс 22 миллиона рублей! |
*Подробнее
Встреча на объекте

Посмотрите жилой комплекс и оцените преимущества

Выберите условия покупки
Перейти к сравнению