Top.Mail.Ru

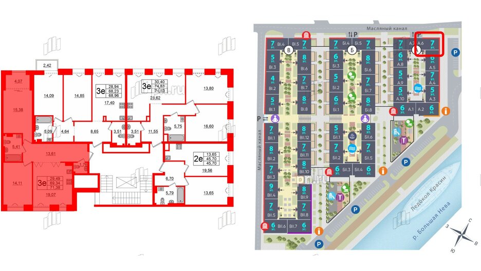
3е комнатная квартира 69.34 м², № 60

Квартира в ЖК «Империал Клаб», 2 комнатная, 69.34 м², 5 этаж
Квартира в ЖК «Империал Клаб», 2 комнатная, 69.34 м², 5 этаж
69,34 м² 29,49 м² 19,07 м² 5 из 7
Общая площадь Площадь комнат Площадь кухни Этаж
Два санузла Лоджия Отделка — 
Нет

Уникальные квартиры

Условия покупки

Элит-класс 22 миллиона рублей! |
*Подробнее
Встреча на объекте

Посмотрите жилой комплекс и оцените преимущества

Выберите условия покупки
Перейти к сравнению