Top.Mail.Ru

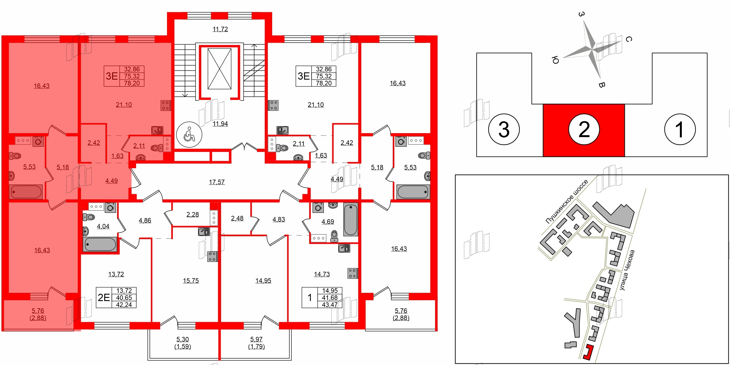
3е комнатная квартира 78.4 м², № 67

Квартира в ЖК «Айкью Гатчина», 2 комнатная, 78.4 м², 3 этаж
Квартира в ЖК «Айкью Гатчина», 2 комнатная, 78.4 м², 3 этаж
78,40 м² 32,86 м² 21,10 м² 2.72 м 3 из 9
Общая площадь Площадь комнат Площадь кухни Высота потолка Этаж
Два санузла Лоджия Отделка — 
Нет
Выберите условия покупки
Перейти к сравнению