Top.Mail.Ru

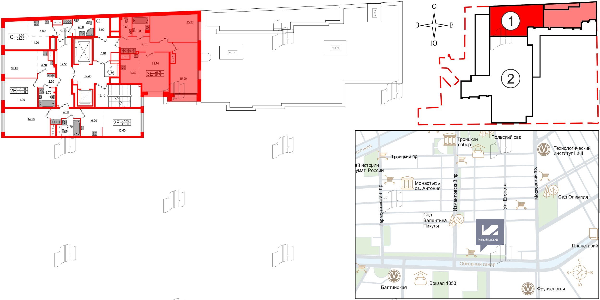
3е комнатная квартира 65.3 м², № 56

Квартира в ЖК Измайловский, 2 комнатная, 65.3 м², 8 этаж
Квартира в ЖК Измайловский, 2 комнатная, 65.3 м², 8 этаж
65,30 м² 31,20 м² 19,60 м² 8 из 11
Общая площадь Площадь комнат Площадь кухни Этаж
Тип санузла:  Раздельный Балкон - нет Отделка — 
Предчистовая
Выберите условия покупки
Перейти к сравнению