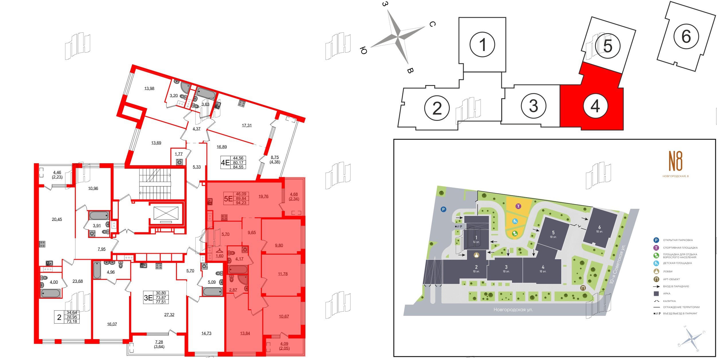
5е комнатная квартира 94.23 м², № 172
ЖК «Новгородская, 8» , Корпус 1
Срок сдачи — II кв. 2027 г.
| 94,23 м² | 46,09 м² | 19,76 м² | 2.75 м | 6 из 10 |
| Общая площадь | Площадь комнат | Площадь кухни | Высота потолка | Этаж |
|---|
| Два санузла | Две лоджии | Отделка — |
Нет
|
|---|
Выберите условия покупки
Забронируйте объект по телефону
Онлайн-бронирование временно недоступно