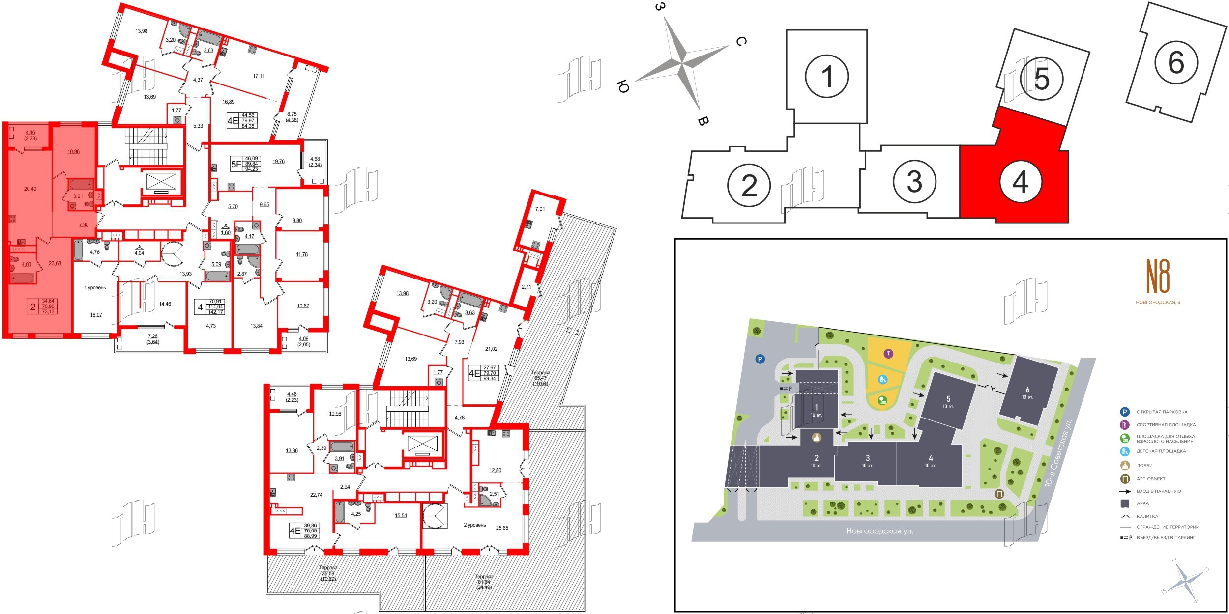
3е комнатная квартира 73.13 м², № 186
ЖК «Новгородская, 8» , Корпус 1
Срок сдачи — II кв. 2027 г.
| 73,13 м² | 34,63 м² | 20,40 м² | 3 м | 9 из 10 |
| Общая площадь | Площадь комнат | Площадь кухни | Высота потолка | Этаж |
|---|
| Два санузла | Лоджия | Отделка — |
Нет
|
|---|
Выберите условия покупки
Забронируйте объект по телефону
Онлайн-бронирование временно недоступно