Top.Mail.Ru

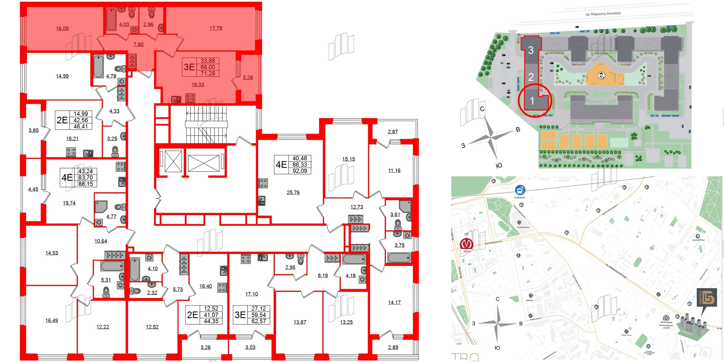
3е комнатная квартира 68 м², № 6

Квартира в ЖК Квартал Б15, 2 комнатная, 68 м², 2 этаж
Квартира в ЖК Квартал Б15, 2 комнатная, 68 м², 2 этаж
68,00 м² 33,88 м² 19,33 м² 2.7 м 2 из 15
Общая площадь Площадь комнат Площадь кухни Высота потолка Этаж
Два санузла Лоджия Отделка — 
Отделка ЖК Б15
Выберите условия покупки
Перейти к сравнению