Top.Mail.Ru

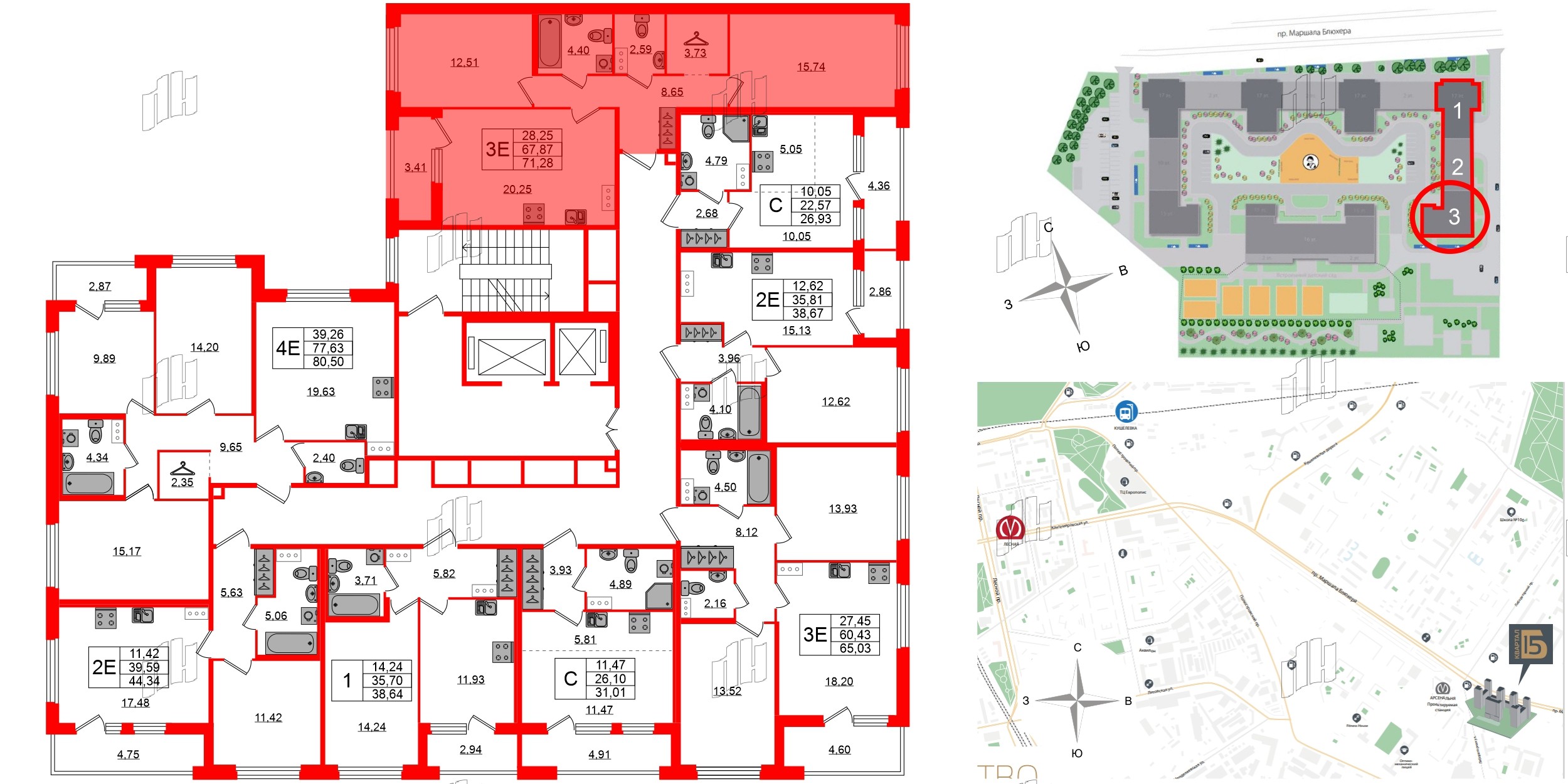
3е комнатная квартира 67.87 м², № 715

Квартира в ЖК Квартал Б15, 2 комнатная, 67.87 м², 5 этаж
Квартира в ЖК Квартал Б15, 2 комнатная, 67.87 м², 5 этаж
67,87 м² 28,25 м² 20,25 м² 2.7 м 5 из 15
Общая площадь Площадь комнат Площадь кухни Высота потолка Этаж
Два санузла Лоджия Отделка — 
WhiteBox ЖК Б15
Выберите условия покупки
Перейти к сравнению