Top.Mail.Ru

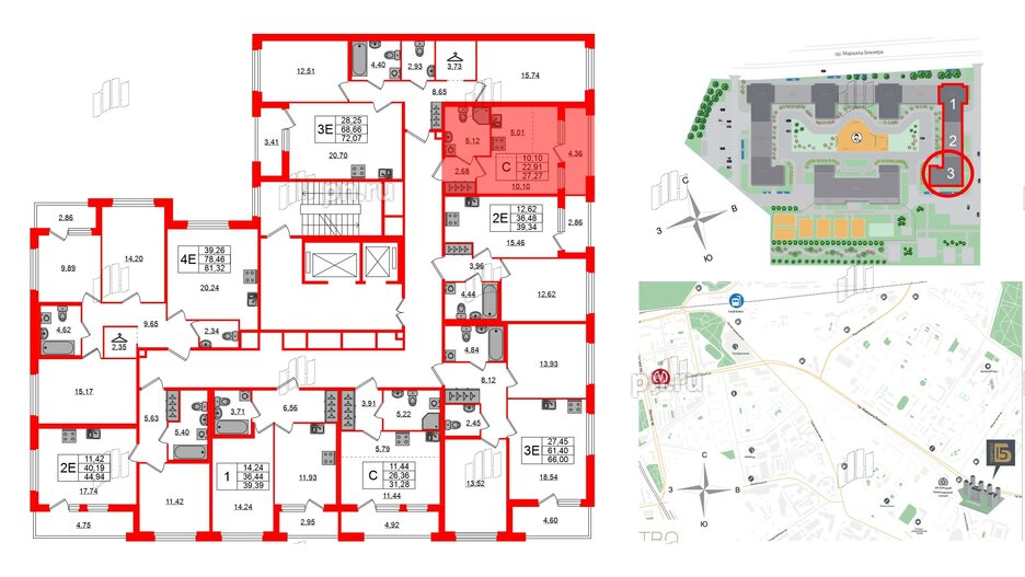
Студия 22.91 м², № 692

Квартира в ЖК Квартал Б15, студия, 22.91 м², 2 этаж
Квартира в ЖК Квартал Б15, студия, 22.91 м², 2 этаж
22,91 м² 10,10 м² 5,01 м² 2.7 м 2 из 15
Общая площадь Площадь комнат Площадь кухни Высота потолка Этаж
Тип санузла:  Совмещенный Лоджия Отделка — 
WhiteBox ЖК Б15
Выберите условия покупки
Перейти к сравнению