Top.Mail.Ru

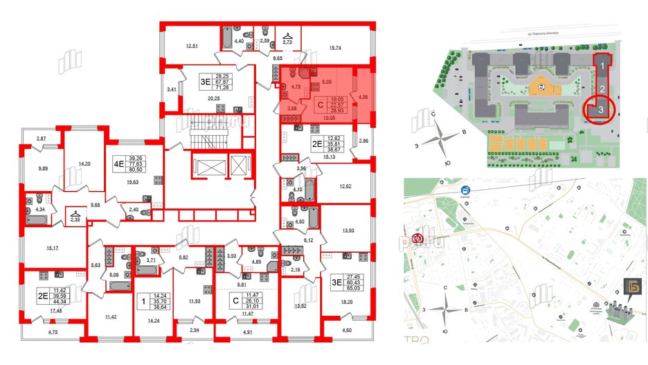
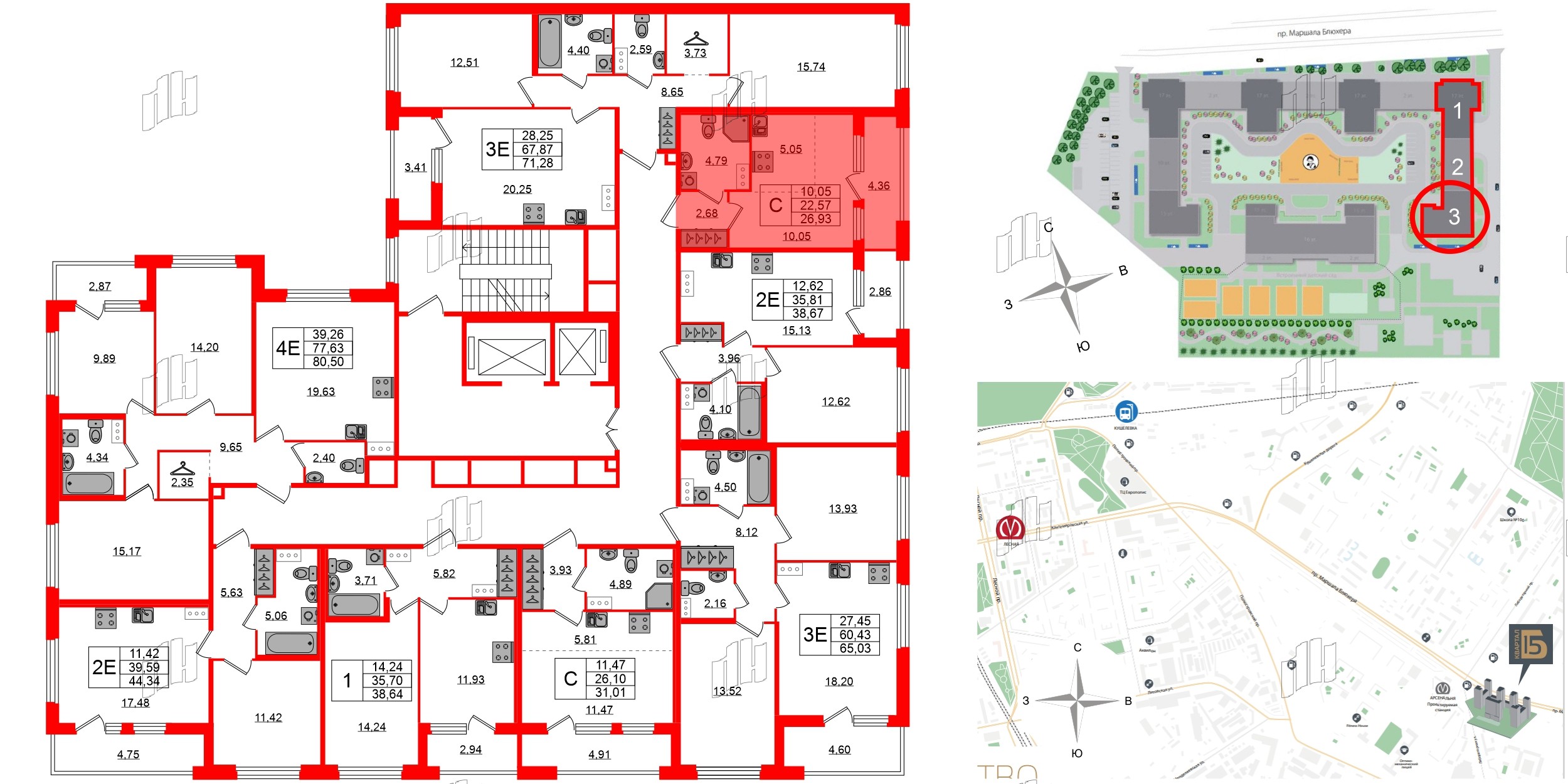
Студия 22.57 м², № 708

Квартира в ЖК Квартал Б15, студия, 22.57 м², 4 этаж
Квартира в ЖК Квартал Б15, студия, 22.57 м², 4 этаж
22,57 м² 10,05 м² 5,05 м² 2.7 м 4 из 15
Общая площадь Площадь комнат Площадь кухни Высота потолка Этаж
Тип санузла:  Совмещенный Лоджия Отделка — 
WhiteBox ЖК Б15
Выберите условия покупки
Перейти к сравнению