Top.Mail.Ru

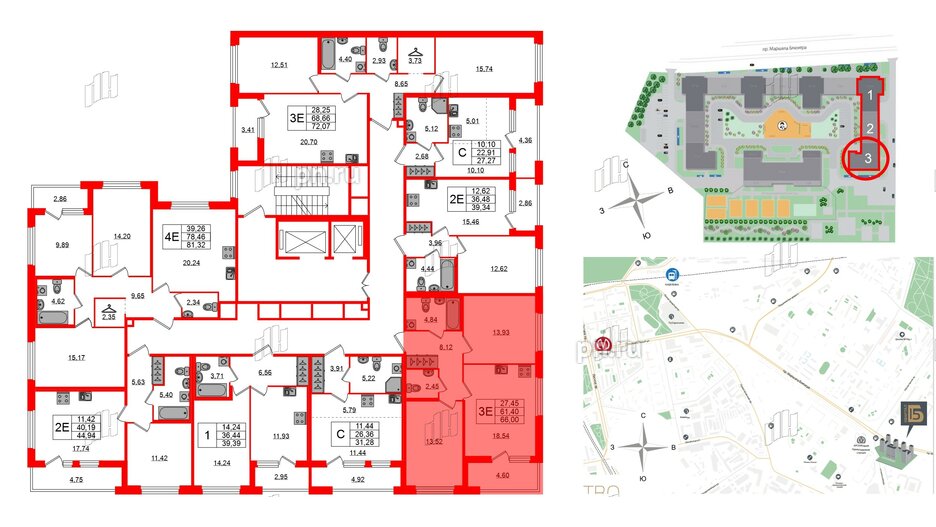
3е комнатная квартира 61.4 м², № 694

Квартира в ЖК Квартал Б15, 2 комнатная, 61.4 м², 2 этаж
Квартира в ЖК Квартал Б15, 2 комнатная, 61.4 м², 2 этаж
61,40 м² 27,45 м² 18,54 м² 2.7 м 2 из 15
Общая площадь Площадь комнат Площадь кухни Высота потолка Этаж
Два санузла Лоджия Отделка — 
WhiteBox ЖК Б15
Выберите условия покупки
Перейти к сравнению