Top.Mail.Ru

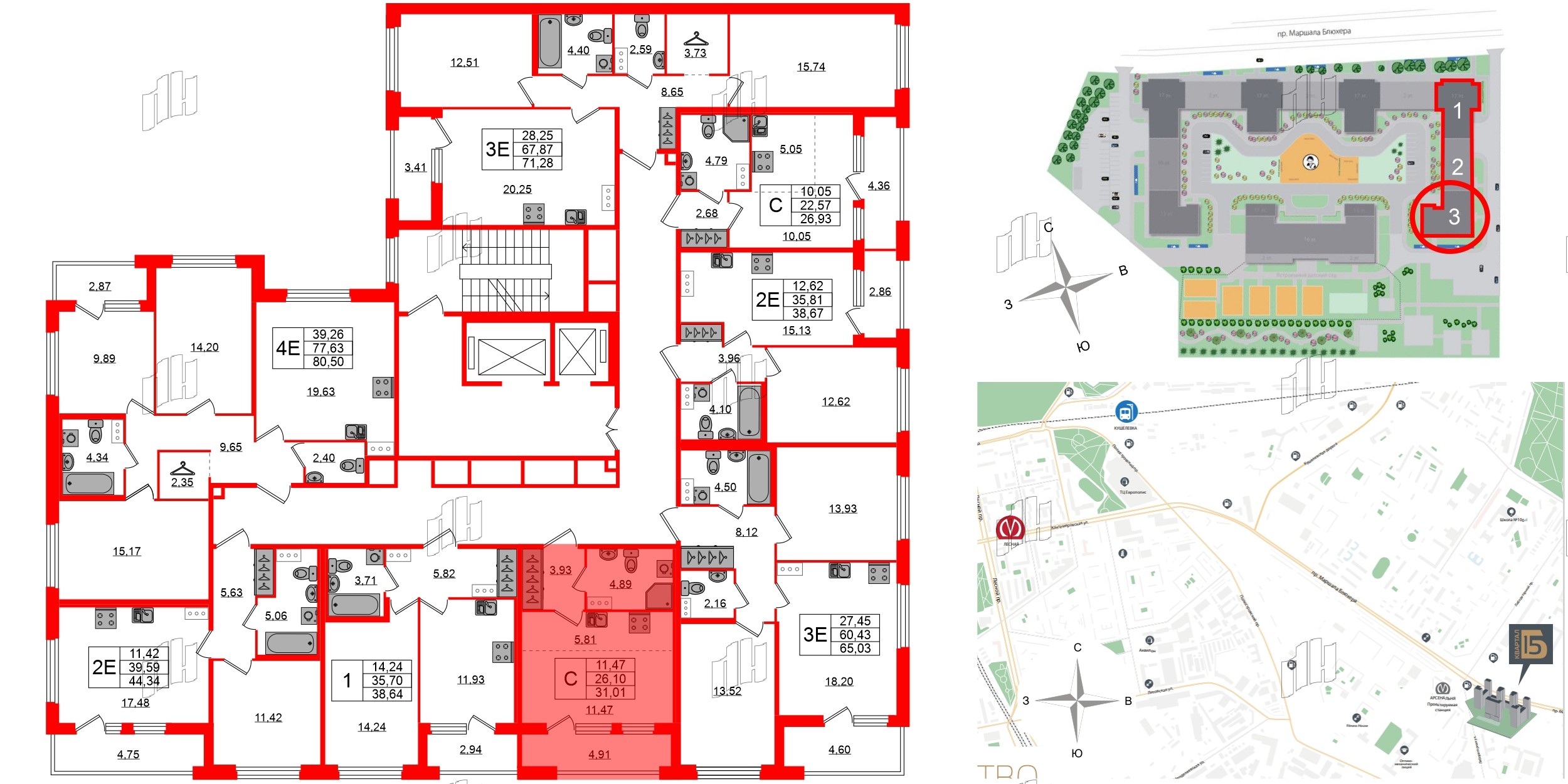
Студия 26.1 м², № 711

Квартира в ЖК Квартал Б15, студия, 26.1 м², 4 этаж
Квартира в ЖК Квартал Б15, студия, 26.1 м², 4 этаж
26,10 м² 11,47 м² 5,81 м² 2.7 м 4 из 15
Общая площадь Площадь комнат Площадь кухни Высота потолка Этаж
Тип санузла:  Совмещенный Лоджия Отделка — 
WhiteBox ЖК Б15
Выберите условия покупки
Перейти к сравнению