Top.Mail.Ru

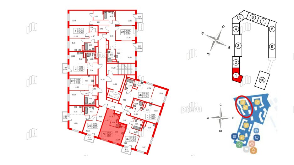
Студия 24.54 м², № 49

Квартира в ЖК Квартал Лаголово, студия, 24.54 м², 7 этаж
Квартира в ЖК Квартал Лаголово, студия, 24.54 м², 7 этаж
24,54 м² 10,59 м² 5,49 м² 2.77 м 7 из 9
Общая площадь Площадь комнат Площадь кухни Высота потолка Этаж
Тип санузла:  Совмещенный Балкон - нет Отделка — 
White Box ("Уайт Бокс")
Выберите условия покупки
Перейти к сравнению